2k apartment pr-t Yevropeyskoho Soyuzu 1

  • Podilskyi District pr-t Yevropeyskoho Soyuzu 1
  • Code: SF-3-249-691
  • Added by: 25.02.2026
  • Add to favorites
Market type
Primary market
Street
pr-t Yevropeyskoho Soyuzu 1
Number of rooms
2
Floor
18 Floor
Number of storeys
25 storey house
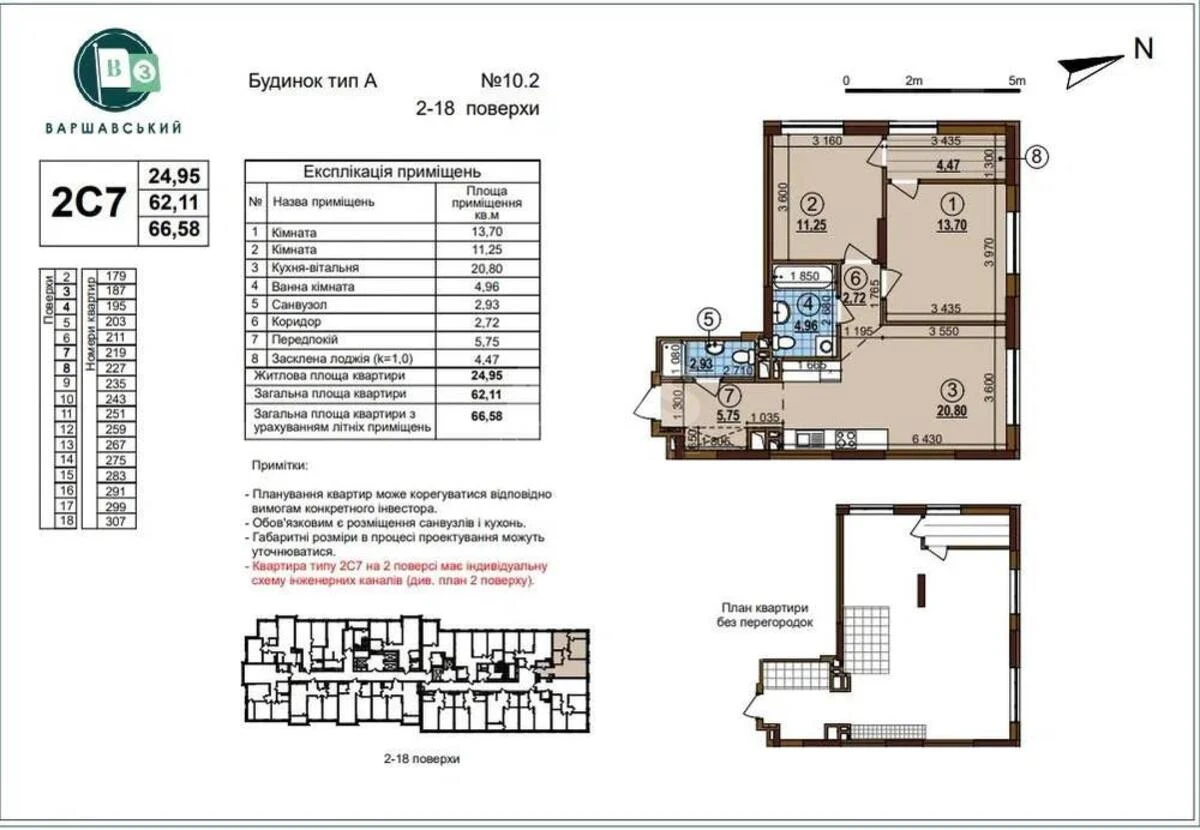
Total area
66 м2
General state
Without repair
Price:
3 681 331 UAH
85 000 USD
Description of the object

RC Varshavsky 3, 2-bedroom apartment. Condition after the builders. There is a laser screed on the floor, electricity, fire alarm, meters for cold, hot water, electricity, metal entrance, fire doors, Rehau plastic windows with double-glazed windows. The developer has installed a generator for backup power supply.

Similar offers