2к квартира пр-т Європейського Союзу 1

  • Подільський район пр-т Європейського Союзу 1
  • Код: SF-3-249-691
  • Добавлено: 25.02.2026
  • Додати в обране
Тип ринку
Первинний ринок
Вулиця
пр-т Європейського Союзу 1
Кількість кімнат
2
Поверх
18 Поверх
Поверховість
25 поверховий будинок
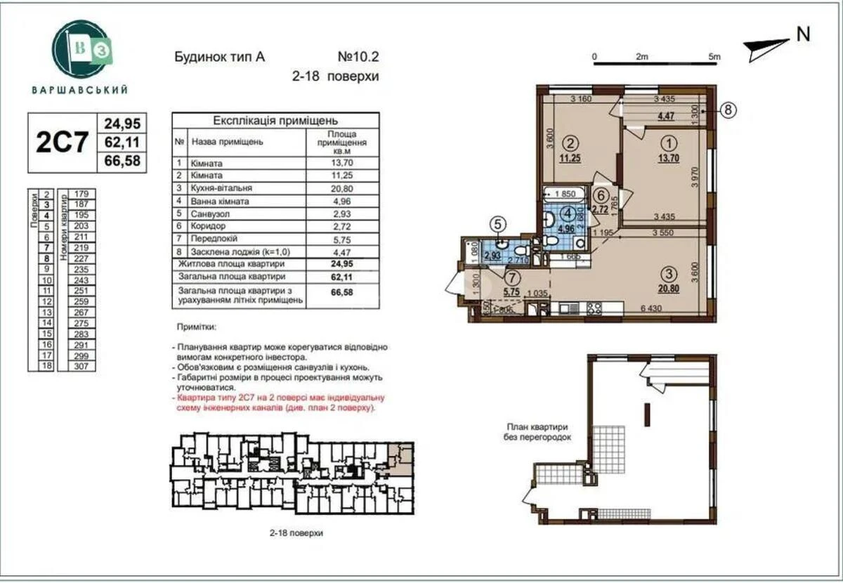
Загальна площа
66 м2
Загальний стан
Без ремонту
Ціна:
3 681 331 грн.
85 000 USD
Опис об'єкту

ЖК Варшавський 3, 2 кімнатна квартира. Стан після будівельників. На підлозі лазерна стяжка, проведено електрика, пожежна сигналізація, лічильники на холодну, гарячу воду, електроенергію, вхідні металеві, протипожежні двері, металопластикові вікна Rehau із двокамерним склопакетом. Забудовником встановлено генератор для резервного електричного живлення.

Схожі пропозиції