2к квартира пр-т Голосеевский 74

  • Голосеевский район пр-т Голосеевский 74
  • Код: RF-3-304-778
  • Добавлено: 15.04.2026
  • Добавить в избранное
Тип рынка
Вторичный рынок
Улица
пр-т Голосеевский 74
Количество комнат
2
Этаж
4 Этаж
Этажность
4 этажный дом
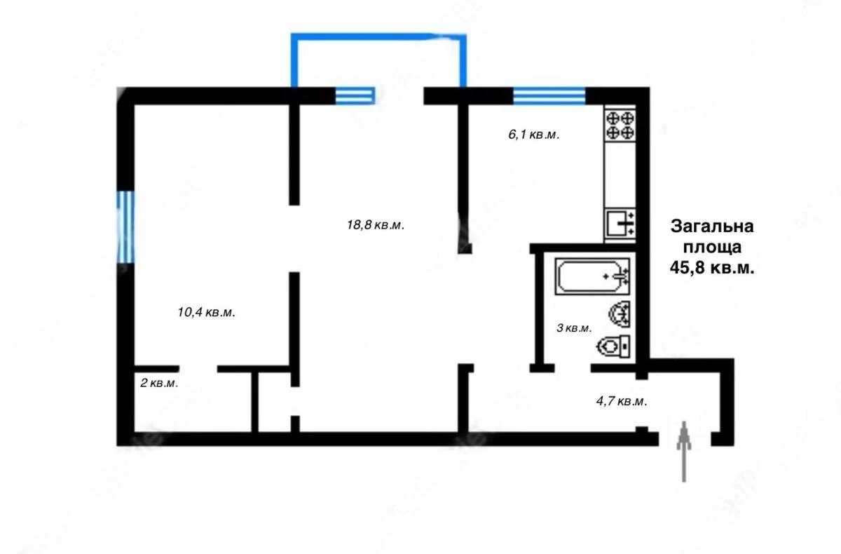
Общая площадь
45 м2
Общее состояние
С ремонтом
Цена:
20 000 грн.
460 USD
Описание объекта

2-комнатная квартира. Уютная двухкомнатная квартира с продуманной планировкой: отдельные комнаты, балкон и кладовая для хранения вещей. В ванной комнате сделан новый ремонт. Квартира очень теплая благодаря качественному отоплению, а также имеет хорошую шумоизоляцию, что обеспечивает комфортное проживание. Дом с ухоженным подъездом и спокойной атмосферой. Тихий двор создает дополнительный комфорт для жильцов. Возле дома есть места для парковки и зоны отдыха. Дом расположен в живописном месте рядом с Голосеевским парком — идеально для прогулок и отдыха на природе. До метро «Голосеевская» всего 1 минута пешком. Район имеет развитую инфраструктуру: рядом магазины, школы, детские сады, банки и медицинские учреждения, что делает проживание максимально удобным.

Похожие предложения