1к квартира ул. Докучаевская 11

  • Соломенский район ул. Докучаевская 11
  • Код: RF-3-304-831
  • Добавлено: 15.04.2026
  • Добавить в избранное
Тип рынка
Вторичный рынок
Улица
ул. Докучаевская 11
Количество комнат
1
Этаж
3 Этаж
Этажность
3 этажный дом
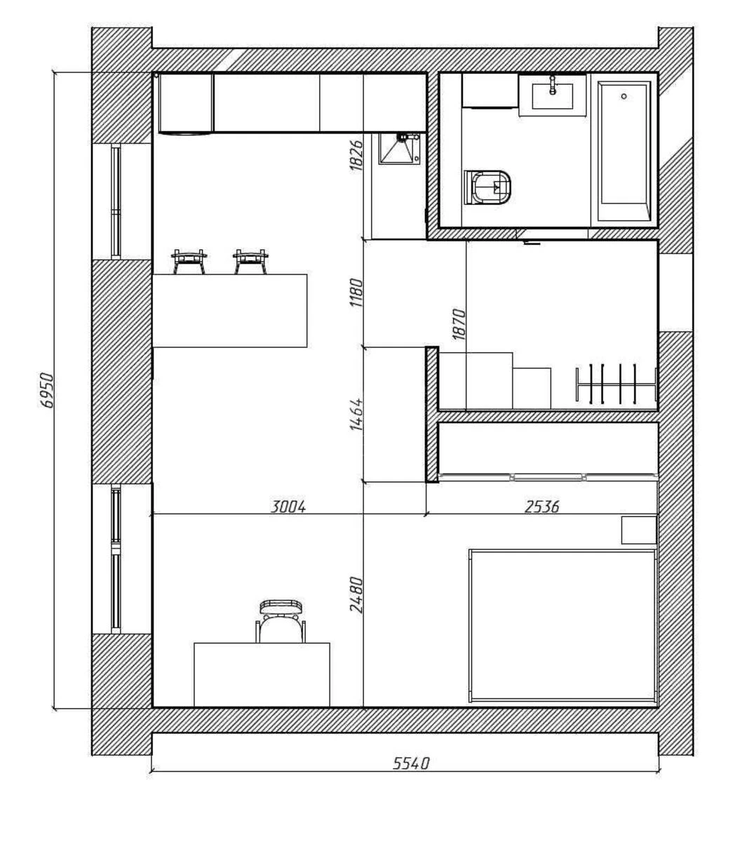
Общая площадь
38 м2
Общее состояние
С ремонтом
Цена:
23 000 грн.
529 USD
Описание объекта

1-комнатная квартира. Уютная квартира-студия с авторским ремонтом в доме типа «сталинка». Высота потолка — 2,93 м, что придает помещению простора и света. Квартира полностью укомплектована новой мебелью и современной техникой: холодильник, газовая варочная панель, электрическая духовка, микроволновая печь, посудомоечная машина, стиральная машина, пылесос, кондиционер, бойлер, рекуператор, измельчитель пищевых отходов. Есть вся необходимая посуда для комфортного проживания. Планировка студийная, санузел смежен с ванной. Также есть балкон/лоджия. Проведен высокоскоростной интернет и Wi-Fi, который работает даже во время отключений света. Установлены счетчики на воду и газ. Классический кирпичный дом с толстыми стенами, обеспечивающими хорошую шумо- и теплоизоляцию. Централизованное отопление. Тихие и спокойные соседи, ухоженный подъезд. Дом расположен в тихом и зеленом районе с удобной транспортной доступностью. До метро «Олимпийская» и «Вокзальная» — около 2 км, до станции городской электрички «Протасов Яр» — 850 м. Рядом находится Соломенский ландшафтный парк (500 м) — прекрасное место для прогулок и отдыха. В районе есть все необходимые объекты инфраструктуры для комфортной жизни.

Похожие предложения