2k apartment pr-t Golosii'vs'kyj 74

  • Holosiivskyi District pr-t Golosii'vs'kyj 74
  • Code: RF-3-304-778
  • Added by: 15.04.2026
  • Add to favorites
Market type
Secondary market
Street
pr-t Golosii'vs'kyj 74
Number of rooms
2
Floor
4 Floor
Number of storeys
4 storey house
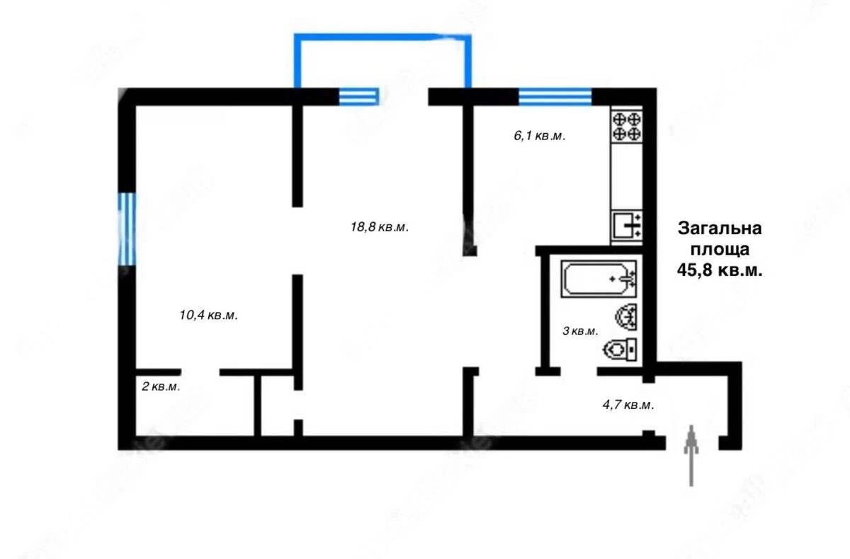
Total area
45 м2
General state
With repair
Price:
20 000 UAH
460 USD
Description of the object

A two-bedroom flat. A cosy two-bedroom flat with a well-designed layout: separate rooms, a balcony and a storage cupboard. The bathroom has been recently refurbished. The flat is very warm thanks to high-quality heating and also has good soundproofing, ensuring a comfortable living environment. The building has a well-maintained entrance and a peaceful atmosphere. The quiet courtyard provides additional comfort for residents. There are parking spaces and relaxation areas near the building. The building is situated in a picturesque location next to Holosiivskyi Park — ideal for walks and relaxing in nature. Holosiivska metro station is just a 1-minute walk away. The area has well-developed infrastructure: shops, schools, nurseries, banks and medical facilities are all nearby, making living here as convenient as possible.

Similar offers