1к квартира ул. Закревского Николая 97А

  • Деснянский район ул. Закревского Николая 97А
  • Код: SF-3-240-310
  • Добавлено: 13.11.2025
  • Добавить в избранное
Тип рынка
Вторичный рынок
Улица
ул. Закревского Николая 97А
Количество комнат
1
Этаж
13 Этаж
Этажность
25 этажный дом
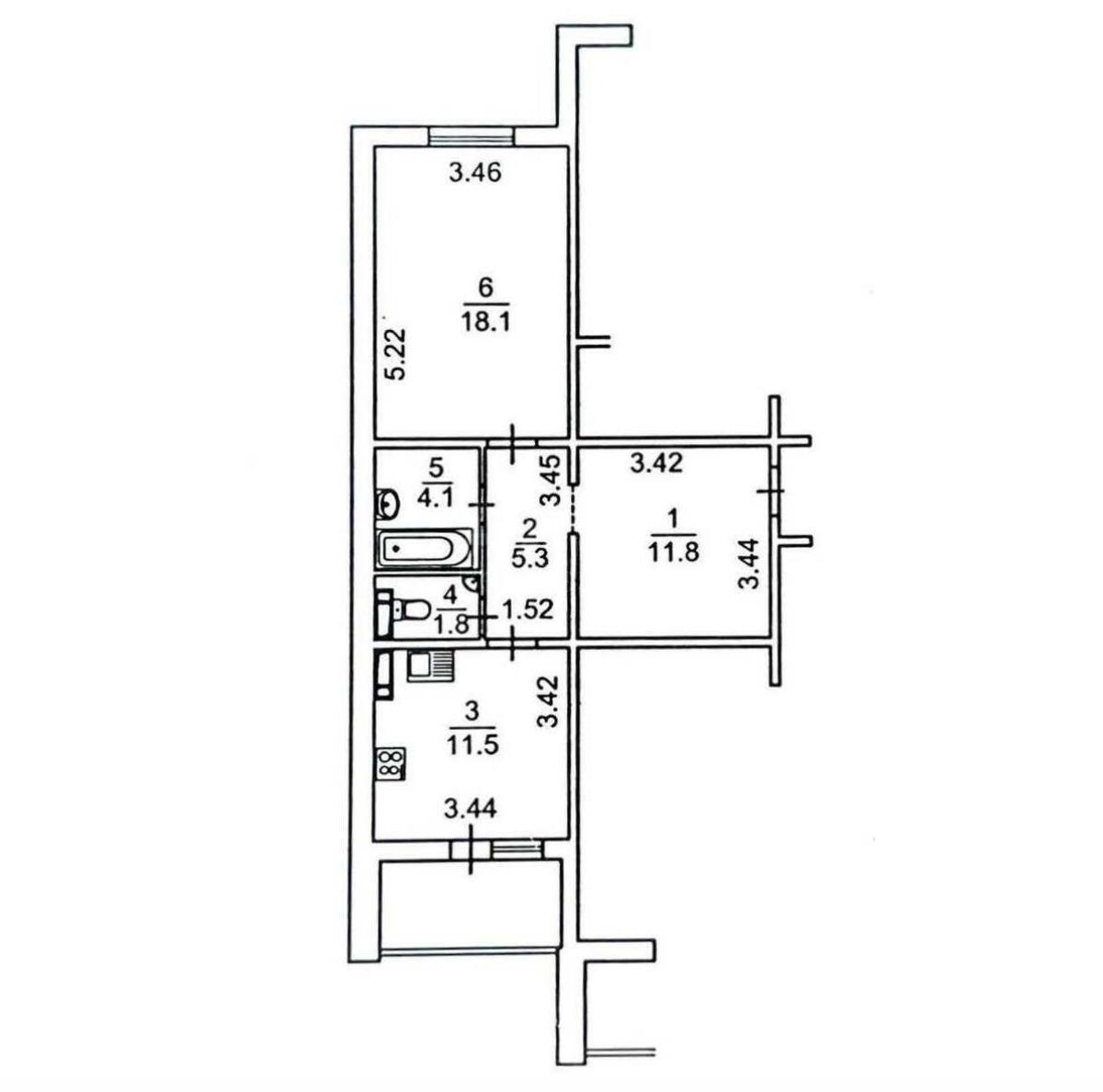
Общая площадь
54 м2
Общее состояние
С ремонтом
Цена:
2 522 011 грн.
60 000 USD
  • AXIS Real Estate
  • AXIS Real Estate
  • AXIS Real Estate
Описание объекта

ЖК Милославичи, 1 комнатная квартира. Просторная и уютная квартира в жилом состоянии с удачной планировкой. Кухня увеличена за счет лоджии, установлена встроенная кухня с варочной поверхностью, духовым шкафом, вытяжкой, посудомоечной машиной, микроволновкой и двухкамерным холодильником. В гостиной - диван, в спальне - двуспальный раскладной диван, детская комната обустроена двухъярусной кроватью, компьютерным столом и спортивным уголком. В холле - угловой диван и встроенная мебель. Санузел раздельный, установлен бойлер, стиральная машина и встроенный шкаф. Есть телевизор, стеклопакеты, двойные бронированные двери. В квартире все счетчики: электроэнергии (день/ночь), воды и тепла, что позволяет существенно экономить на коммунальных услугах зимой. Дом оборудован собственной котельной, работает консьерж, есть кодовый замок, большой закрытый тамбур. Лифт исправен, подъезд ухоженный. Обеспечена автономность во время блэкаутов. Закрытая и благоустроенная придомовая территория с детскими площадками, зелеными зонами и местами для отдыха. Есть наземный паркинг как для жильцов, так и для гостей. На территории комплекса функционируют детский сад, аптека, магазин и салон красоты. Рядом расположены школы, лицей, садики, продуктовые магазины, торговые центры и остановки общественного транспорта с маршрутами в разные районы города. Место тихое и спокойное, с хорошей транспортной развязкой.

Дополнительная информация

Похожие предложения