1к квартира вул. Закревського Миколи 97А

  • Деснянський район вул. Закревського Миколи 97А
  • Код: SF-3-240-310
  • Добавлено: 13.11.2025
  • Додати в обране
Тип ринку
Вторинний ринок
Вулиця
вул. Закревського Миколи 97А
Кількість кімнат
1
Поверх
13 Поверх
Поверховість
25 поверховий будинок
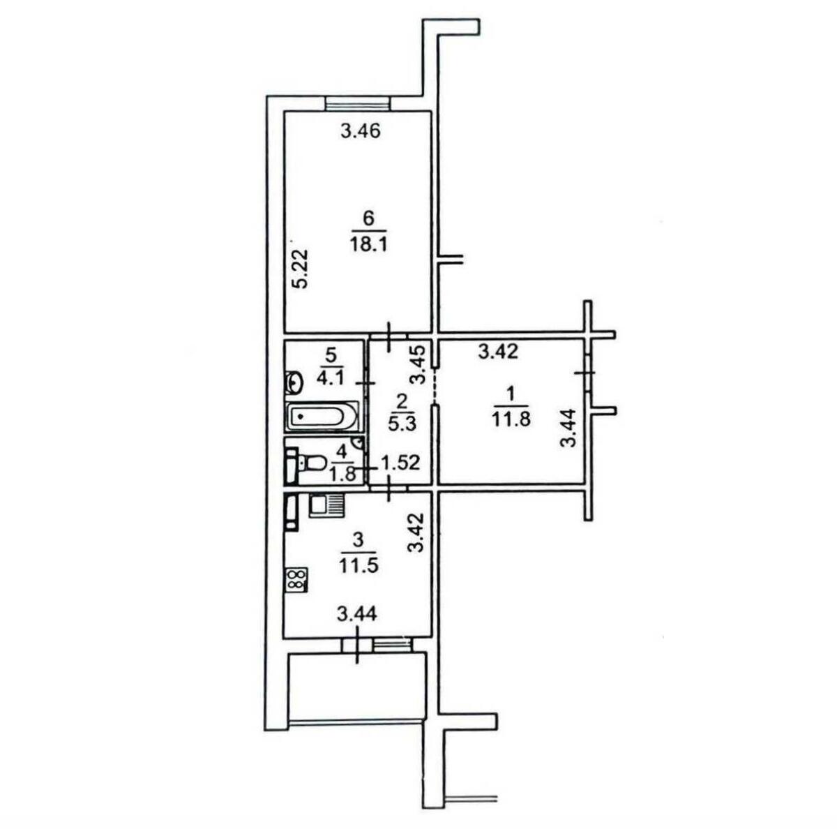
Загальна площа
54 м2
Загальний стан
З ремонтом
Ціна:
2 522 011 грн.
60 000 USD
  • AXIS Real Estate
  • AXIS Real Estate
  • AXIS Real Estate
Опис об'єкту

ЖК Милославичі, 1 кімнатна квартира. Простора та затишна квартира у житловому стані з вдалим плануванням. Кухня збільшена за рахунок лоджії, встановлена вбудована кухня з варильною поверхнею, духовою шафою, витяжкою, посудомийною машиною, мікрохвильовкою та двокамерним холодильником. У вітальні – диван, у спальні – двоспальний розкладний диван, дитяча кімната облаштована двоярусним ліжком, комп’ютерним столом та спортивним куточком. У холі – кутовий диван і вбудовані меблі. Санвузол роздільний, встановлений бойлер, пральна машина та вбудована шафа. Є телевізор, склопакети, подвійні броньовані двері. У квартирі всі лічильники: електроенергії (день/ніч), води та тепла, що дозволяє суттєво економити на комунальних послугах взимку. Будинок обладнаний власною котельнею, працює консьєрж, є кодовий замок, великий закритий тамбур. Ліфт справний, під’їзд доглянутий. Забезпечена автономність під час блекаутів. Закрита та впорядкована прибудинкова територія з дитячими майданчиками, зеленими зонами та місцями для відпочинку. Є наземний паркінг як для мешканців, так і для гостей. На території комплексу функціонують дитячий садок, аптека, магазин та салон краси. Поруч розташовані школи, ліцей, садочки, продуктові магазини, торгові центри та зупинки громадського транспорту з маршрутами у різні райони міста. Місце тихе та спокійне, з гарною транспортною розв’язкою.

Додаткова інформація

Схожі пропозиції