1k apartment vul. Zakrevs'kogo Mykoly 97А

  • Desnyanskyi District vul. Zakrevs'kogo Mykoly 97А
  • Code: SF-3-240-310
  • Added by: 13.11.2025
  • Add to favorites
Market type
Secondary market
Street
vul. Zakrevs'kogo Mykoly 97А
Number of rooms
1
Floor
13 Floor
Number of storeys
25 storey house
Total area
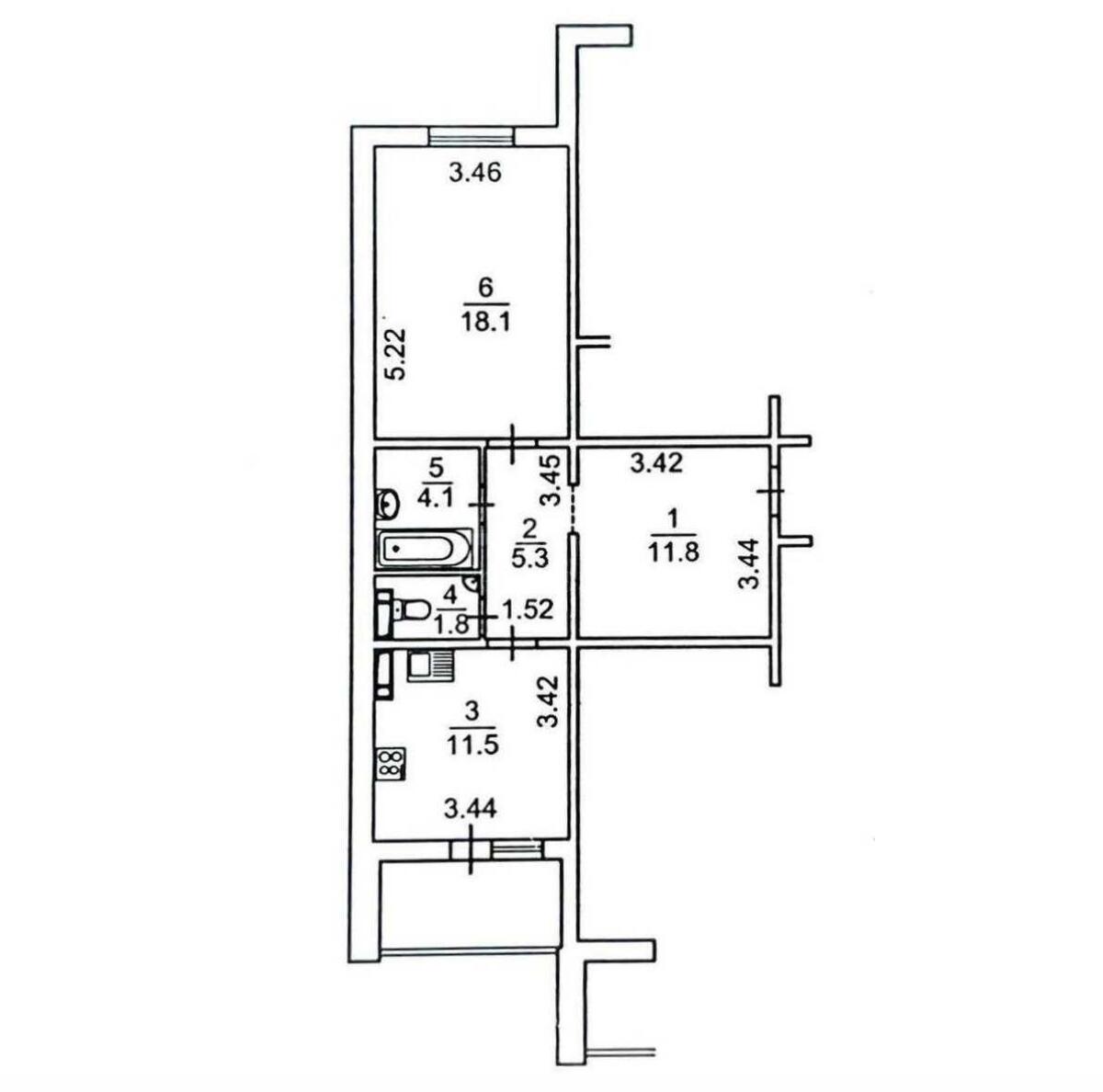
54 м2
General state
With repair
Price:
2 522 011 UAH
60 000 USD
  • AXIS Real Estate
  • AXIS Real Estate
  • AXIS Real Estate
Description of the object

Miloslavychi residential complex, 1 bedroom apartment. Spacious and cozy apartment in a residential condition with a good layout. The kitchen is enlarged due to the loggia, there is a built-in kitchen with a hob, oven, extractor hood, dishwasher, microwave and two-chamber refrigerator. There is a sofa in the living room, a double sofa bed in the bedroom, and a children's room with a bunk bed, a computer desk, and a sports corner. The hall has a corner sofa and built-in furniture. The bathroom is separate, there is a boiler, a washing machine and a built-in wardrobe. There is a TV, double-glazed windows, double armored doors. The apartment has all meters: electricity (day/night), water and heat, which allows you to significantly save on utilities in winter. The house is equipped with its own boiler room, a concierge, a combination lock, and a large closed vestibule. The elevator is in good working order, the entrance is well maintained. Autonomy during blackouts is provided. Closed and landscaped adjoining territory with playgrounds, green areas and places for recreation. There is a ground parking lot for both residents and guests. The complex has a kindergarten, a pharmacy, a shop and a beauty salon. Schools, a lyceum, kindergartens, grocery stores, shopping centers and public transport stops with routes to different parts of the city are located nearby. The location is quiet and peaceful, with good transport interchange.

Additional Information

Similar offers