1k apartment vul. Dokuchajevs'ka 11

  • Solomianskyi District vul. Dokuchajevs'ka 11
  • Code: RF-3-304-831
  • Added by: 15.04.2026
  • Add to favorites
Market type
Secondary market
Street
vul. Dokuchajevs'ka 11
Number of rooms
1
Floor
3 Floor
Number of storeys
3 storey house
Total area
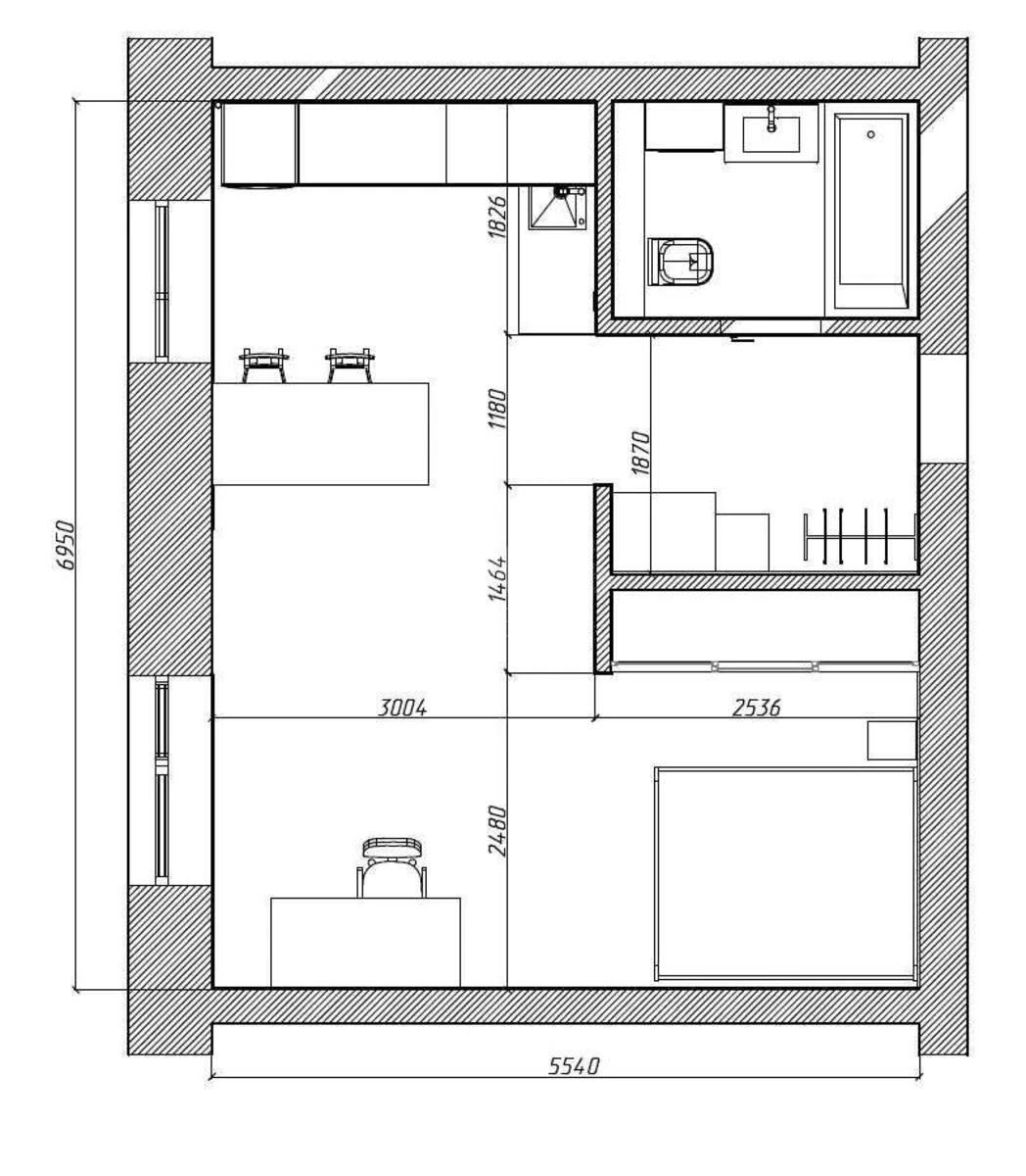
38 м2
General state
With repair
Price:
23 000 UAH
529 USD
Description of the object

A one-bedroom flat. A cosy studio flat with a designer refurbishment in a ‘Stalinka’-style building. The ceiling height is 2.93 m, which adds a sense of space and light. The flat is fully equipped with new furniture and modern appliances: fridge, gas hob, electric oven, microwave, dishwasher, washing machine, vacuum cleaner, air conditioning, boiler, heat recovery unit, and food waste disposer. All necessary kitchenware is provided for a comfortable stay. The layout is a studio, with the bathroom adjoining the shower room. There is also a balcony/loggia. High-speed internet and Wi-Fi are installed, which works even during power cuts. Water and gas meters are installed. A classic brick building with thick walls, providing good sound and thermal insulation. Central heating. Quiet and peaceful neighbours, well-maintained entrance. The building is situated in a quiet and green area with convenient transport links. The ‘Olimpiiska’ and ‘Vokzalna’ metro stations are approximately 2 km away, and the ‘Protasiv Yar’ suburban railway station is 850 m away. Solomyansky Landscape Park (500 m) is nearby — a wonderful place for walks and relaxation. The area has all the necessary amenities for a comfortable lifestyle.

Similar offers