Об'єкт торгівлі вул. Жилянська 72А, 1500м2

  • Голосіївський район вул. Жилянська 72А
  • Код: SC-223-250
  • Добавлено: 30.05.2026
  • Додати в обране
Тип ринку
Вторинний ринок
Вулиця
вул. Жилянська 72А
Назначение
Торгове приміщення
Поверх
Поверх
Поверховість
4 поверховий будинок
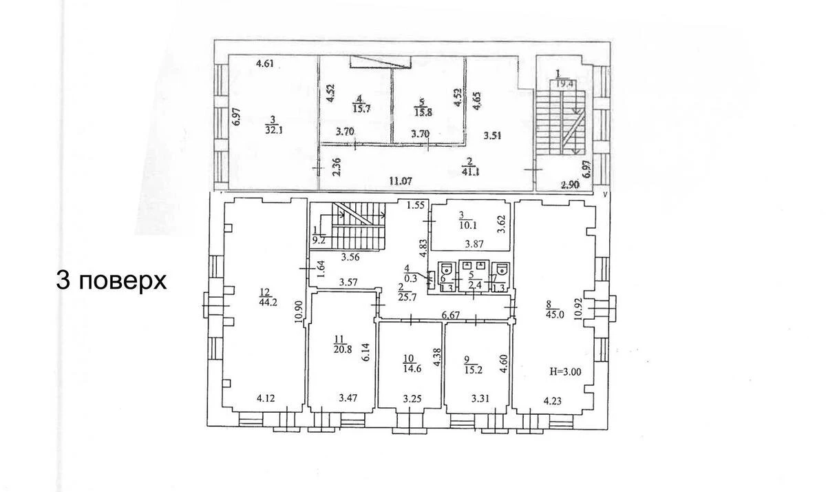
Загальна площа
1500 м2
Загальний стан
Без ремонту
Ціна:
132 805 467 грн.
3 000 000 USD
Опис об'єкту

Приміщення вільного призначення. Місцезнаходження: Центральна частина міста з зручною транспортною розв'язкою. Поруч в пішохідній доступності 3 станції метро («Університет», «Площа Українських Героїв» та «Олімпійська» знаходяться в межах 1 км). Інфраструктура: дві презентабельні вхідні групи, рецепція, всі необхідні комунікації та сучасні системи безпеки, власну огорожу, паркінг на 15 авто, цілодобова охорона. Є можливість встановити ліфт всередині будівлі. Будівля, після реконструкції, якісно споруджена з червоної цегли, перекрита дахом з міді та високоякісне оздоблення.

Схожі пропозиції