Об'єкт торгівлі вул. Заболотного Академіка 148Б, 60м2

  • Голосіївський район вул. Заболотного Академіка 148Б
  • Код: RC-221-294
  • Добавлено: 29.03.2026
  • Додати в обране
Тип ринку
Вторинний ринок
Вулиця
вул. Заболотного Академіка 148Б
Назначение
Торгове приміщення
Поверх
1 Поверх
Поверховість
16 поверховий будинок
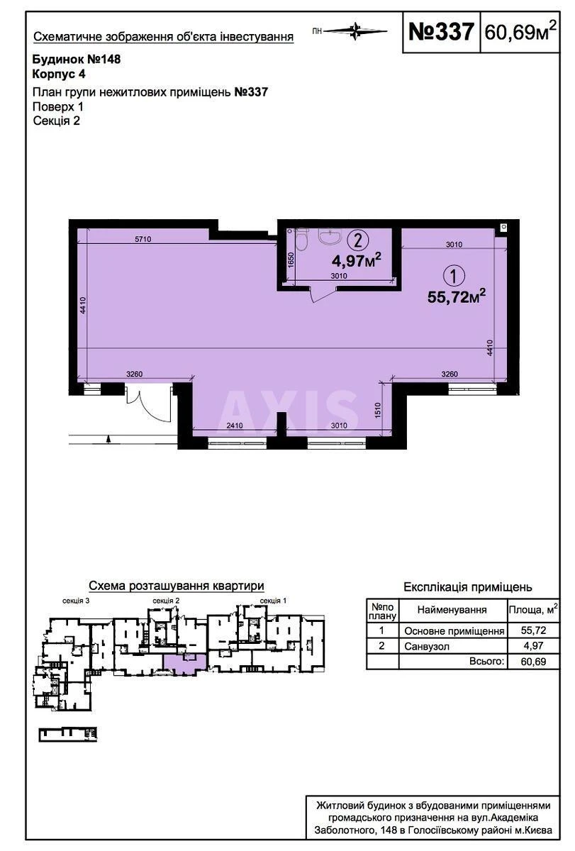
Загальна площа
60 м2
Загальний стан
Без ремонту
Ціна:
30 900 грн.
704 USD
Опис об'єкту

ЖК на вул. Академіка Заболотного, 148, приміщення вільного призначення. Є можливість розміщення зовньошньої реклами. Проводимо ремонт приміщень під орендаря, базовий або індивідальний, за домовленістю. Оренда комерційних приміщень напряму від забудовника. Доступні приміщення різної площі, планування та функціонального призначення: під офіси, сервіс, торгівлю, студії, склади та інші направлення.

Схожі пропозиції