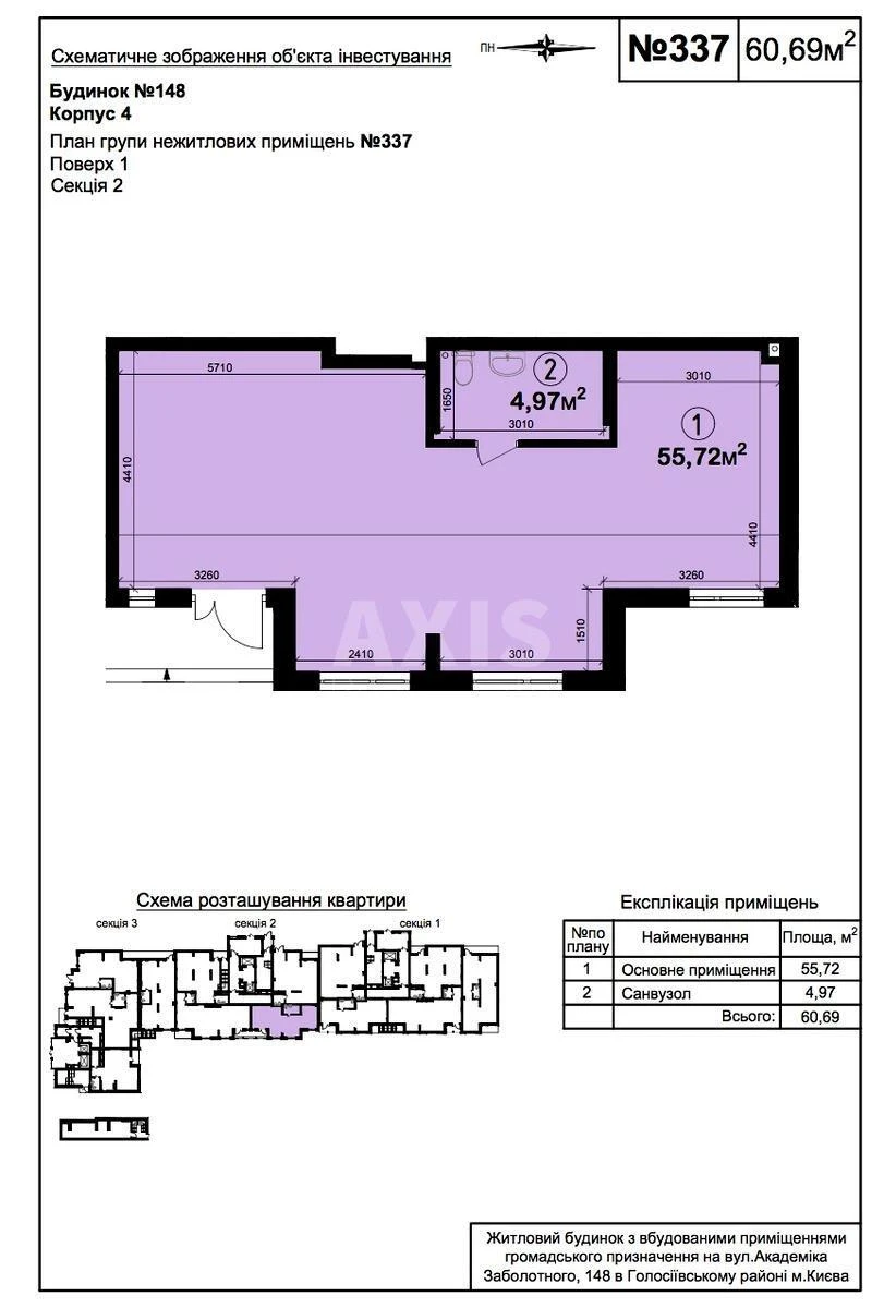
Объект торговли ул. Заболотного Академика 148Б, 60м2

  • Голосеевский район ул. Заболотного Академика 148Б
  • Код: RC-221-294
  • Добавлено: 29.03.2026
  • Добавить в избранное
Тип рынка
Вторичный рынок
Улица
ул. Заболотного Академика 148Б
Призначення
Торговое помещение
Этаж
1 Этаж
Этажность
16 этажный дом
Общая площадь
60 м2
Общее состояние
Без ремонта
Цена:
30 900 грн.
704 USD
Описание объекта

ЖК на ул. Академика Заболотного, 148, помещение свободного назначения. Есть возможность размещения наружной рекламы. Проводим ремонт помещений под арендатора, базовый или индивидуальный, по договоренности. Аренда коммерческих помещений напрямую от застройщика. Доступны помещения различной площади, планировки и функционального назначения: под офисы, сервис, торговлю, студии, склады и другие направления.

Похожие предложения