Об'єкт торгівлі вул. Велика Васильківська 101, 62м2

  • Печерський район вул. Велика Васильківська 101
  • Код: RC-220-997
  • Добавлено: 16.02.2026
  • Додати в обране
Тип ринку
Вторинний ринок
Вулиця
вул. Велика Васильківська 101
Назначение
Торгове приміщення
Поверх
1 Поверх
Поверховість
9 поверховий будинок
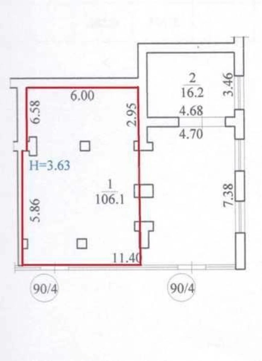
Загальна площа
62 м2
Загальний стан
З ремонтом
Ціна:
133 636 грн.
3 100 USD
Опис об'єкту

Приміщення вільного призначення. Фасадний вхід, великі вітрини. Підключені вода та електроенергія (потужність – 15 кВт). Ремонт від оптики. Ідеально підійде для: торгівлі, сфери обслуговування, громадського харчування, медичних або освітніх послуг або представницького офісу. Площа: 62 м². Високий пішохідний і автомобільний трафік. Метро Палац Україна - 2 хв, Олімпійська - 10 хв.

Схожі пропозиції