Trade object vul. Velyka Vasyl'kivs'ka 101, 62m2

  • Pecherskyi District vul. Velyka Vasyl'kivs'ka 101
  • Code: RC-220-997
  • Added by: 16.02.2026
  • Add to favorites
Market type
Secondary market
Street
vul. Velyka Vasyl'kivs'ka 101
Purpose
Trade Premise
Floor
1 Floor
Number of storeys
9 storey house
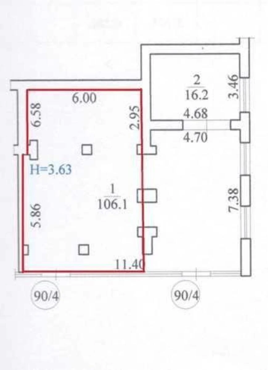
Total area
62 м2
General state
With repair
Price:
133 636 UAH
3 100 USD
Description of the object

Premises for free use. Front entrance, large display windows. Water and electricity connected (power – 15 kW). Renovation from scratch. Ideal for: trade, service sector, catering, medical or educational services, or a representative office. Area: 62 m². High pedestrian and car traffic. Palats Ukraina metro station - 2 minutes, Olimpiyska metro station - 10 minutes.

Similar offers