Об'єкт торгівлі вул. Милославська 39/48, 112м2

  • Деснянський район вул. Милославська 39/48
  • Код: SC-215-555
  • Добавлено: 24.09.2025
  • Додати в обране
Тип ринку
Вторинний ринок
Вулиця
вул. Милославська 39/48
Назначение
Торгове приміщення
Поверх
1 Поверх
Поверховість
10 поверховий будинок
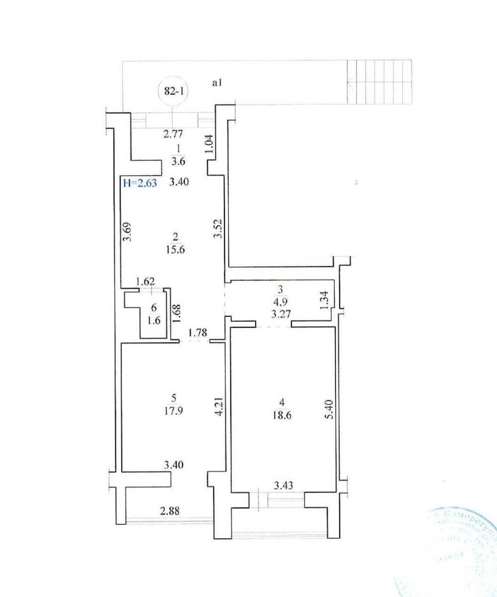
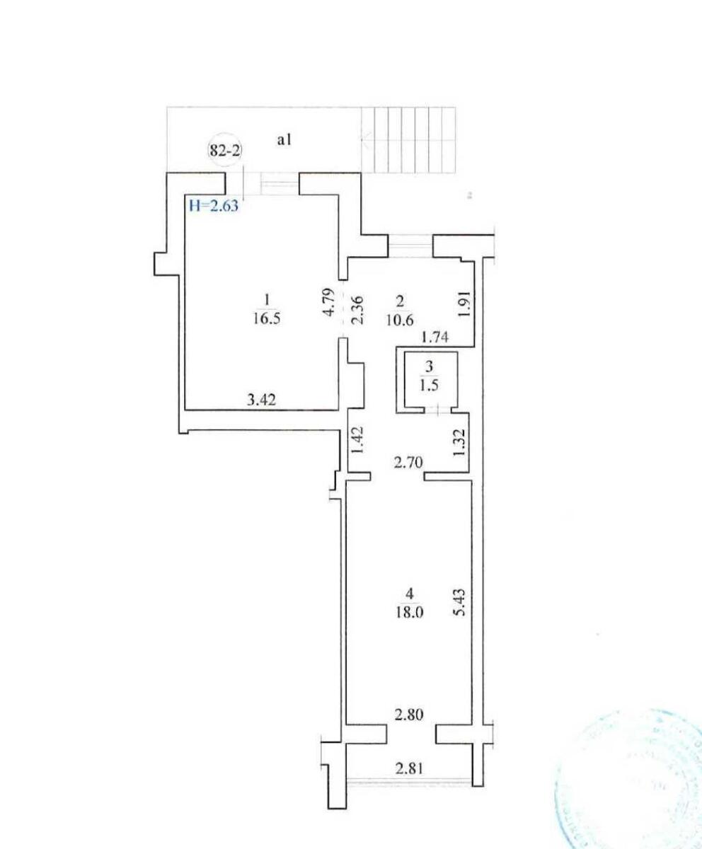
Загальна площа
112 м2
Загальний стан
З ремонтом
Ціна:
10 939 329 грн.
260 000 USD
  • AXIS Real Estate
  • AXIS Real Estate
  • AXIS Real Estate
Опис об'єкту

Приміщення вільного призначення. Помешкання розташоване на першому поверсі житлового будинку. Пожвавлений трафік як пішохідний, так і автомобільний, зручне паркування. Приміщення перед зупинкою громадського транспорту. Дуже гарний огляд з усіх напрямків. Поруч ТЦ 'Милославський', ТЦ 'Корал', Більярдний клуб. Об'єкт лише після ремонту, зроблено високоякісний ремонт фасаду та всередині приміщення з дорогих та якісних матеріалів. Також, замінено проводку, сантехніку, встановлено кондиціонери, проведено інтернет та багато чого іншого для повного функціоналу будь-якого бізнесу.

Додаткова інформація

Схожі пропозиції