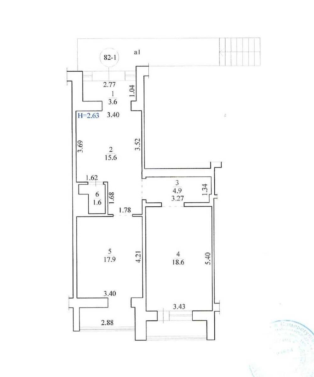
Объект торговли ул. Милославская 39/48, 112м2

  • Деснянский район ул. Милославская 39/48
  • Код: SC-215-555
  • Добавлено: 24.09.2025
  • Добавить в избранное
Тип рынка
Вторичный рынок
Улица
ул. Милославская 39/48
Призначення
Торговое помещение
Этаж
1 Этаж
Этажность
10 этажный дом
Общая площадь
112 м2
Общее состояние
С ремонтом
Цена:
10 939 329 грн.
260 000 USD
  • AXIS Real Estate
  • AXIS Real Estate
  • AXIS Real Estate
Описание объекта

Помещение свободного назначения. Помещение расположено на первом этаже жилого дома. Оживленный трафик как пешеходный, так и автомобильный, удобная парковка. Помещение перед остановкой общественного транспорта. Очень хороший обзор со всех направлений. Рядом ТЦ 'Милославский', ТЦ 'Коралл', Бильярдный клуб. Об'объект только после ремонта, сделан высококачественный ремонт фасада и внутри помещения из дорогих и качественных материалов. Также, заменена проводка, сантехника, установлены кондиционеры, проведен интернет и многое другое для полного функционала любого бизнеса.

Дополнительная информация

Похожие предложения