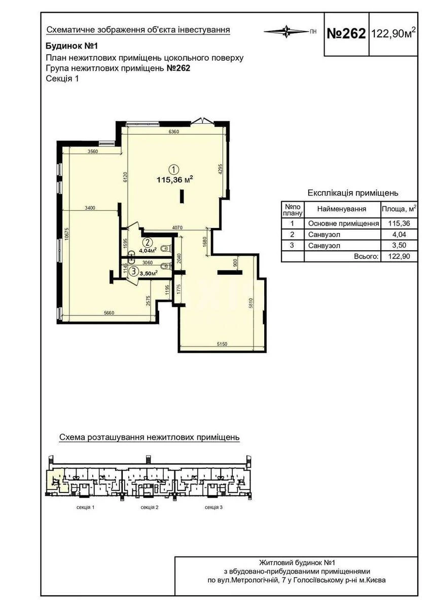
Об'єкт торгівлі вул. Метрологічна 107, 122м2

  • Голосіївський район вул. Метрологічна 107
  • Код: RC-221-358
  • Добавлено: 24.02.2026
  • Додати в обране
Тип ринку
Вторинний ринок
Вулиця
вул. Метрологічна 107
Назначение
Торгове приміщення
Поверх
1 Поверх
Поверховість
10 поверховий будинок
Загальна площа
122 м2
Загальний стан
Без ремонту
Ціна:
74 500 грн.
1 721 USD
Опис об'єкту

ЖК 'Кришталеві джерела', приміщення вільного призначення. Є можливість розміщення зовнішньої реклами. Проводимо ремонт приміщень під орендаря, базовий або індивідуальний, за домовленістю. Оренда комерційних приміщень напряму від забудовника. Доступні приміщення різної площі, планування та функціонального призначення: під офіси, сервіс, торгівлю, студії, склади та інші направлення.

Схожі пропозиції