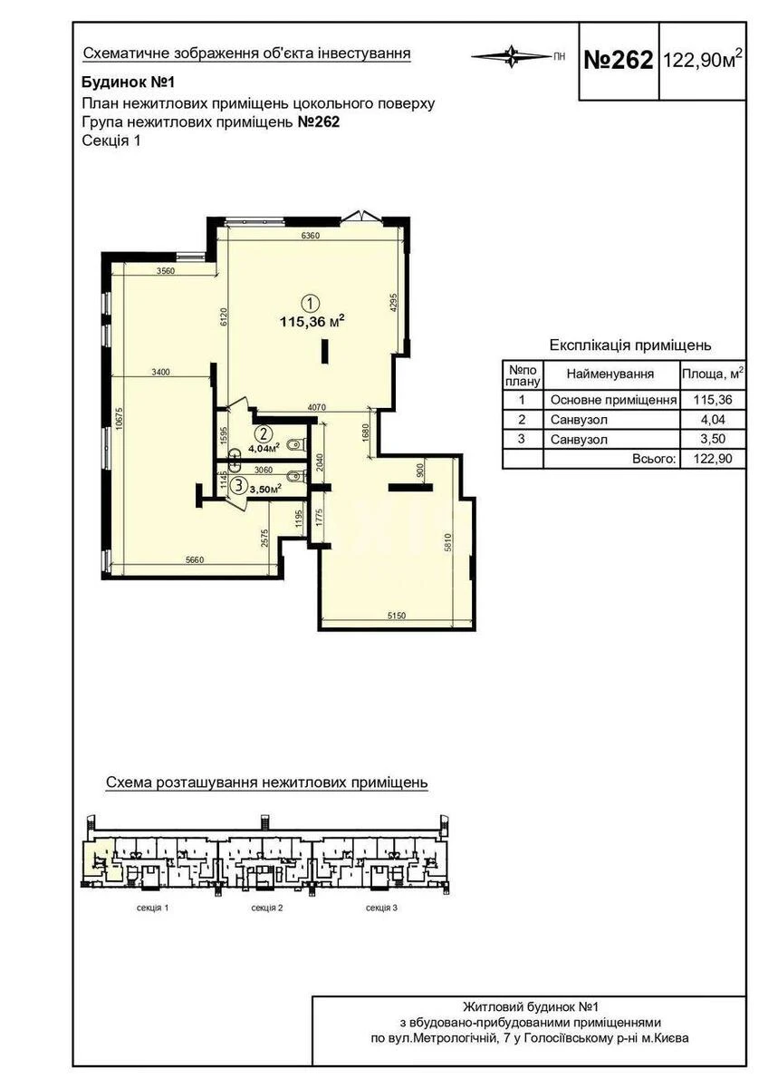
Trade object vul. Metrologichna 107, 122m2

  • Holosiivskyi District vul. Metrologichna 107
  • Code: RC-221-358
  • Added by: 25.02.2026
  • Add to favorites
Market type
Secondary market
Street
vul. Metrologichna 107
Purpose
Trade Premise
Floor
1 Floor
Number of storeys
10 storey house
Total area
122 м2
General state
Without repair
Price:
74 500 UAH
1 720 USD
Description of the object

Residential complex "Crystal Springs", premises for free use. There is a possibility of placing outdoor advertising. We carry out repairs of premises for tenants, basic or individual, as agreed. Rental of commercial premises directly from the developer. Premises of various sizes, layouts and functional purposes are available: for offices, services, trade, studios, warehouses and other purposes.

Similar offers