Об'єкт торгівлі вул. Кривоноса Максима 32, 69м2

  • Солом'янський район вул. Кривоноса Максима 32
  • Код: SC-214-117
  • Добавлено: 26.08.2025
  • Додати в обране
Тип ринку
Вторинний ринок
Вулиця
вул. Кривоноса Максима 32
Назначение
Торгове приміщення
Поверх
1 Поверх
Поверховість
23 поверховий будинок
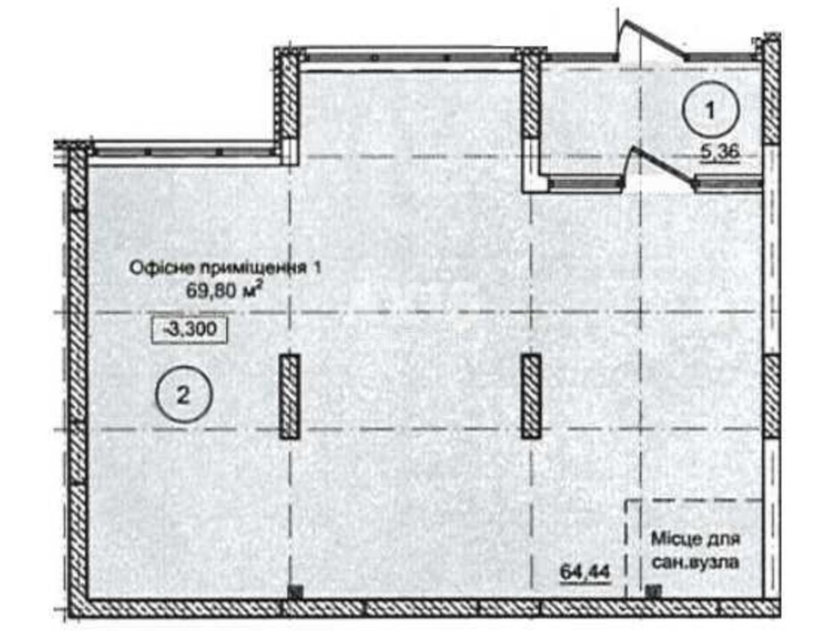
Загальна площа
69 м2
Загальний стан
Без ремонту
Ціна:
10 596 800 грн.
250 628 USD
  • AXIS Real Estate
  • AXIS Real Estate
  • AXIS Real Estate
Опис об'єкту

ЖК 'LIKO-GRAD Perfect Town', приміщення вільного призначення. Є орендар. Продається як готовий бізнес. Загальна площа - 353 м2 (зроблений ремонт). 1 поверх - 186,4м2. Підвал - 166,3м2. Розвинена інфраструктура. Гарна локація.

Додаткова інформація

Схожі пропозиції