Объект торговли ул. Кривоноса Максима 32, 69м2

  • Соломенский район ул. Кривоноса Максима 32
  • Код: SC-214-117
  • Добавлено: 26.08.2025
  • Добавить в избранное
Тип рынка
Вторичный рынок
Улица
ул. Кривоноса Максима 32
Призначення
Торговое помещение
Этаж
1 Этаж
Этажность
23 этажный дом
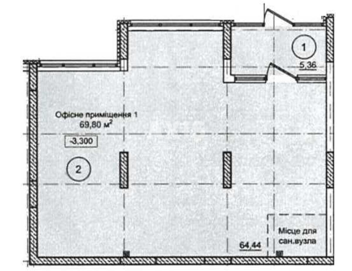
Общая площадь
69 м2
Общее состояние
Без ремонта
Цена:
10 596 800 грн.
250 628 USD
  • AXIS Real Estate
  • AXIS Real Estate
  • AXIS Real Estate
Описание объекта

ЖК 'LIKO-GRAD Perfect Town', помещение свободного назначения. Есть арендатор. Продается как готовый бизнес. Общая площадь - 353 м2 (сделан ремонт). 1 этаж - 186,4м2. Подвал - 166,3м2. Развитая инфраструктура. Хорошая локация.

Дополнительная информация

Похожие предложения