Об'єкт торгівлі вул. Кадетський гай 10, 59м2

  • Солом'янський район вул. Кадетський гай 10
  • Код: SC-217-118
  • Добавлено: 28.10.2025
  • Додати в обране
Тип ринку
Вторинний ринок
Вулиця
вул. Кадетський гай 10
Назначение
Торгове приміщення
Поверх
1 Поверх
Поверховість
26 поверховий будинок
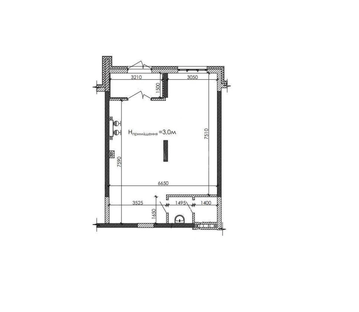
Загальна площа
59 м2
Загальний стан
Без ремонту
Ціна:
3 790 442 грн.
90 000 USD
  • AXIS Real Estate
  • AXIS Real Estate
  • AXIS Real Estate
Опис об'єкту

ЖК Медовий, приміщення вільного призначення. Висота стелі 3.3. м., вхідні двері, великі панорамні вікна, цементно-пісочна стяжка, мідна розводка, радіатори опалення, пожежна сигналізація, лічильники на поверсі. Комплекс розрахований на 5000 – 6000 мешканців, поряд проїзна дорога, що приверне багато клієнтів до вашого фасадного офісу. Територія охороняється 24/7, обладнана відеоспостереженням, гостьовим та підземним паркінгом. Зручна транспортна розв'язка дозволить вам легко дістатися як на машині так і пішки, будинок знаходиться біля Севастопольської площі, просп. Валерія Лобановського, поряд зупинка громадського транспорту.

Додаткова інформація

Схожі пропозиції