Объект торговли ул. Кадетский Гай 10, 59м2

  • Соломенский район ул. Кадетский Гай 10
  • Код: SC-217-118
  • Добавлено: 28.10.2025
  • Добавить в избранное
Тип рынка
Вторичный рынок
Улица
ул. Кадетский Гай 10
Призначення
Торговое помещение
Этаж
1 Этаж
Этажность
26 этажный дом
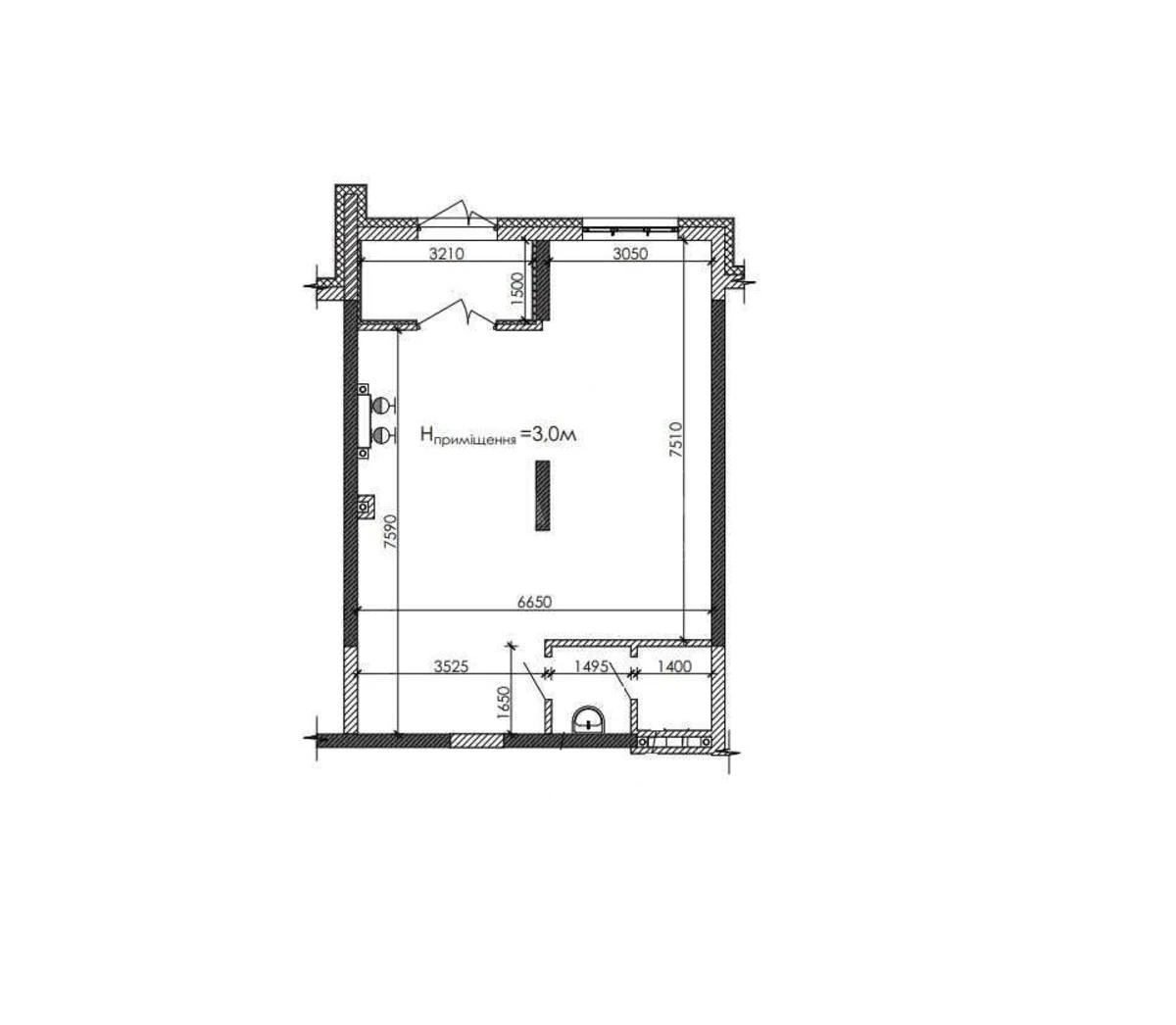
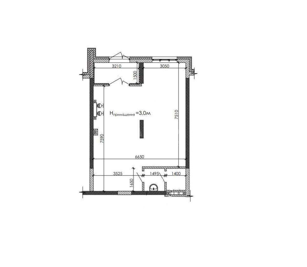
Общая площадь
59 м2
Общее состояние
Без ремонта
Цена:
3 786 691 грн.
90 000 USD
  • AXIS Real Estate
  • AXIS Real Estate
  • AXIS Real Estate
Описание объекта

ЖК Медовый, помещение свободного назначения. Высота потолка 3.3. м., входная дверь, большие панорамные окна, цементно-песочная стяжка, медная разводка, радиаторы отопления, пожарная сигнализация, счетчики на этаже. Комплекс рассчитан на 5000 - 6000 жильцов, рядом проезжая дорога, что привлечет много клиентов к вашему фасадному офису. Территория охраняется 24/7, оборудована видеонаблюдением, гостевым и подземным паркингом. Удобная транспортная развязка позволит вам легко добраться как на машине так и пешком, дом находится возле Севастопольской площади, просп. Валерия Лобановского, рядом остановка общественного транспорта.

Дополнительная информация

Похожие предложения