Об'єкт торгівлі вул. Антонова Авіаконструктора 4, 119м2

  • Солом'янський район вул. Антонова Авіаконструктора 4
  • Код: SC-224-057
  • Добавлено: 23.04.2026
  • Додати в обране
Тип ринку
Вторинний ринок
Вулиця
вул. Антонова Авіаконструктора 4
Назначение
Торгове приміщення
Поверх
1 Поверх
Поверховість
5 поверховий будинок
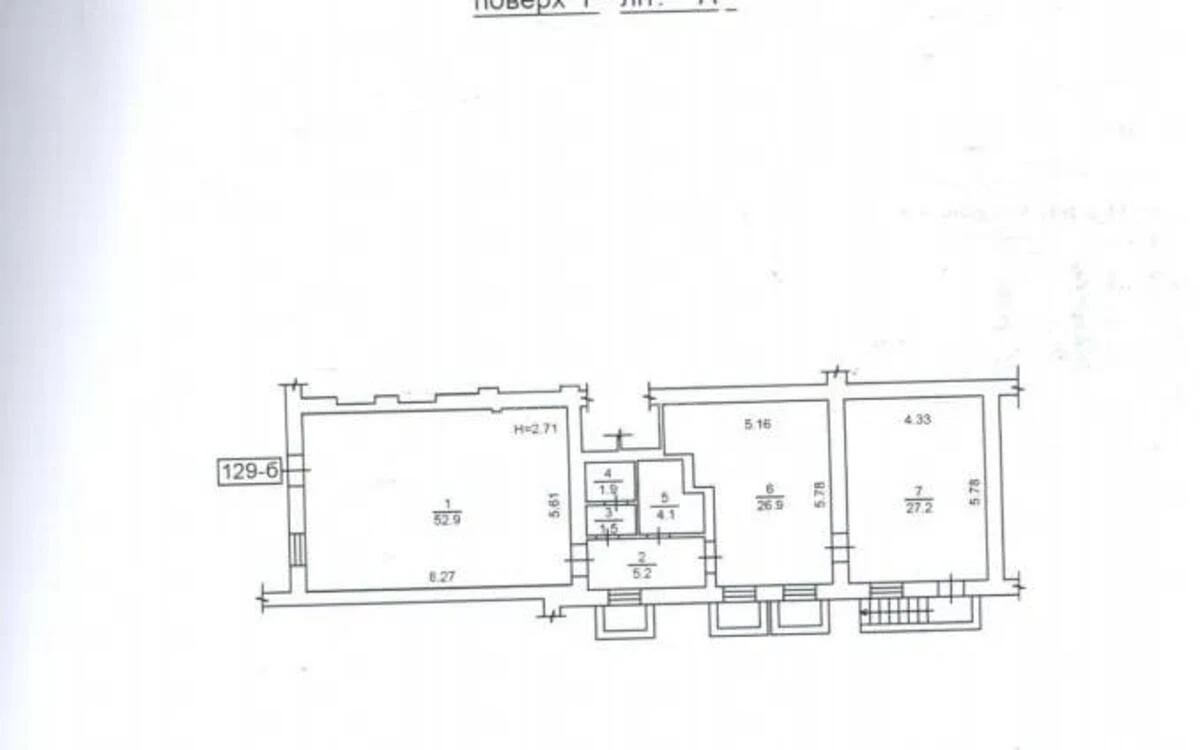
Загальна площа
119 м2
Загальний стан
З ремонтом
Ціна:
6 621 673 грн.
150 000 USD
Опис об'єкту

Приміщення вільного призначення. Знаходиться при в'їзді до житлового масиву першотравневого на солом'янці. Поруч Чоколівка, пл. Приміщення ідеально підходить під ресторан із можливістю зробити свою терасу. Також підійде під будь-який інший вид діяльності: пошта, банк, кафе та ін. Є можливість збільшення потужності. Зручно паркуватись завжди є місце. Поруч сильна інфраструктура, супермаркети: Білла, АТБ; ПриватБанк, Нова Пошта. Жваве місце.

Схожі пропозиції