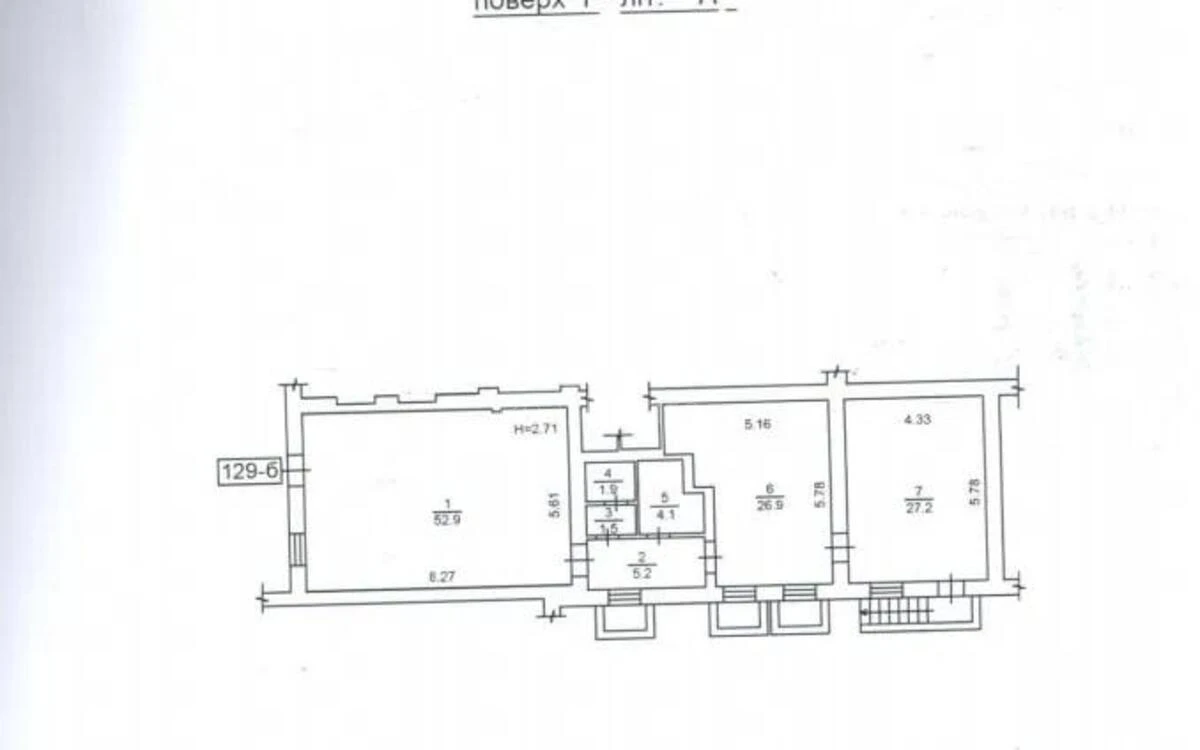
Trade object vul. Antonova Aviakonstruktora 4, 119m2

  • Solomianskyi District vul. Antonova Aviakonstruktora 4
  • Code: SC-224-057
  • Added by: 23.04.2026
  • Add to favorites
Market type
Secondary market
Street
vul. Antonova Aviakonstruktora 4
Purpose
Trade Premise
Floor
1 Floor
Number of storeys
5 storey house
Total area
119 м2
General state
With repair
Price:
6 621 673 UAH
150 000 USD
Description of the object

Multi-purpose premises. Located at the entrance to the Pershotravneve residential estate in Solomyanskiy. Close to Chokolivka and the square. The premises are ideal for a restaurant, with the option to create a terrace. It is also suitable for any other type of business: a post office, bank, café, etc. There is potential to increase capacity. Convenient parking is always available. There is a strong infrastructure nearby, including supermarkets: Billa, ATB; PrivatBank, Nova Poshta. A lively location.

Similar offers