Продаж

Усі фото (3)
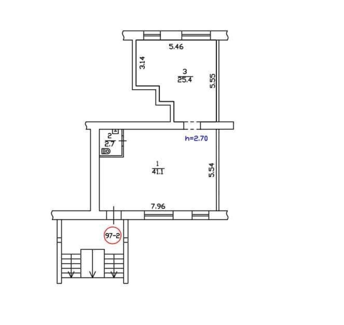
Об'єкт торгівлі вул. Антонова Авіаконструктора 20, 69м2
- Додати в обране
-
Подiлитись посиланням
Тип ринку
Вторинний ринок
Вулиця
вул. Антонова Авіаконструктора 20
Назначение
Торгове приміщення
Поверх
1 Поверх
Поверховість
5 поверховий будинок
Загальна площа
69 м2
Загальний стан
З ремонтом
Ціна:
3 413 407 грн.
82 800 USD
Опис об'єкту
Приміщення вільного призначення. Нежитловий фонд. Фасадний окремий вхід. Ремонт. Всі комунікації заведені. Поруч парк, дві аптеки, багато комерційних фасадних сагазинів, НОВУС, БОКС, алея прогулянкова, перехрестя, пішохідні переходи Густонаселений район, нові ЖК.
Додаткова інформація