Sell

All photos (3)
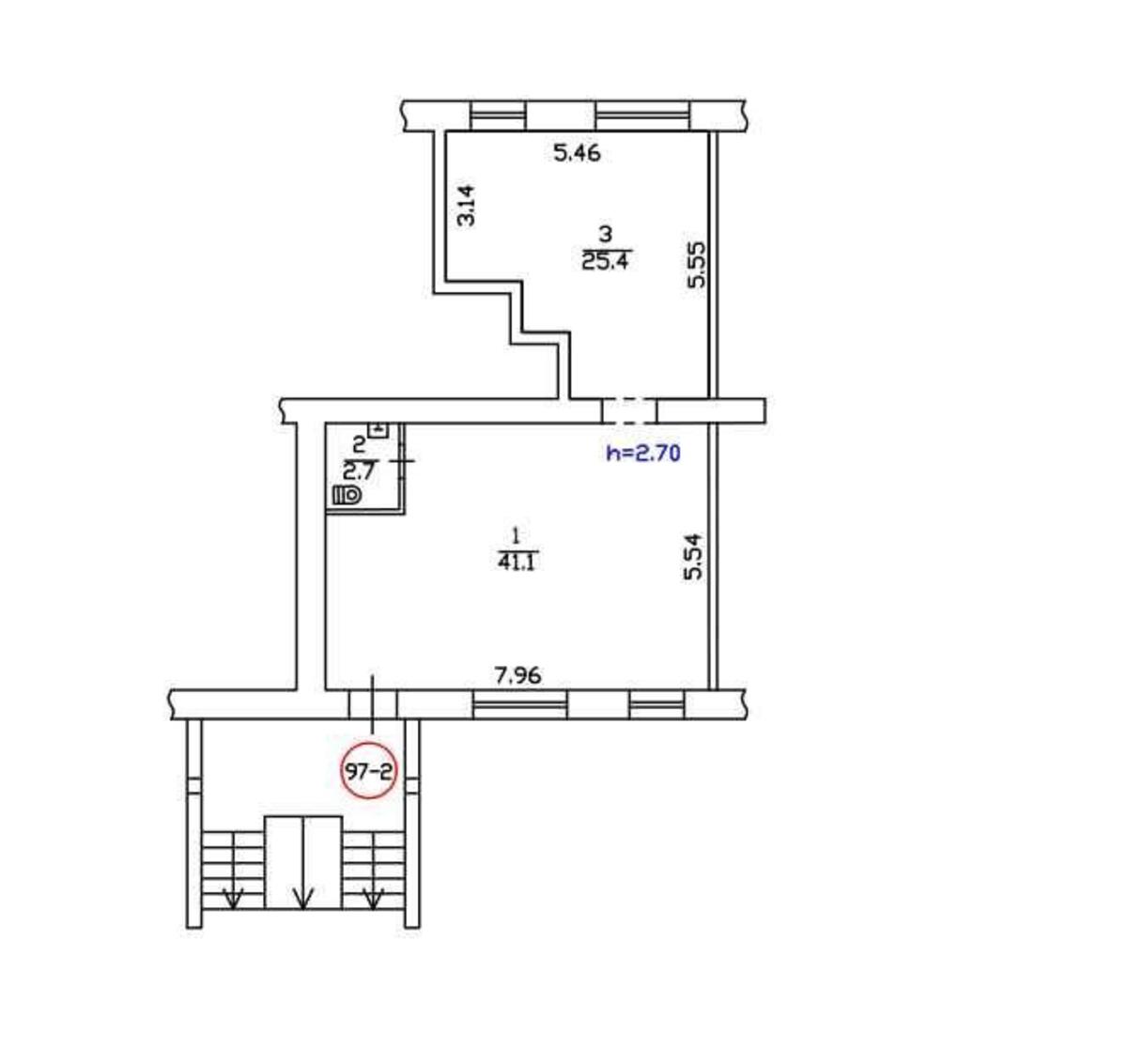
Trade object vul. Antonova Aviakonstruktora 20, 69m2
- Add to favorites
-
Share link
Market type
Secondary market
Street
vul. Antonova Aviakonstruktora 20
Purpose
Trade Premise
Floor
1 Floor
Number of storeys
5 storey house
Total area
69 м2
General state
With repair
Price:
3 413 407 UAH
82 800 USD
Description of the object
Premises for free use. Non-residential fund. Facade separate entrance. Repair. All communications are established. Near the park, two pharmacies, many commercial facade shops, NOVUS, BOKS, walking alley, intersections, pedestrian crossings Densely populated area, new residential complexes.
Additional Information