Об'єкт торгівлі вул. Андрія Верхогляда 6Б, 77м2

  • Печерський район вул. Андрія Верхогляда 6Б
  • Код: SC-216-914
  • Добавлено: 22.10.2025
  • Додати в обране
Тип ринку
Вторинний ринок
Вулиця
вул. Андрія Верхогляда 6Б
Назначение
Торгове приміщення
Поверх
1 Поверх
Поверховість
9 поверховий будинок
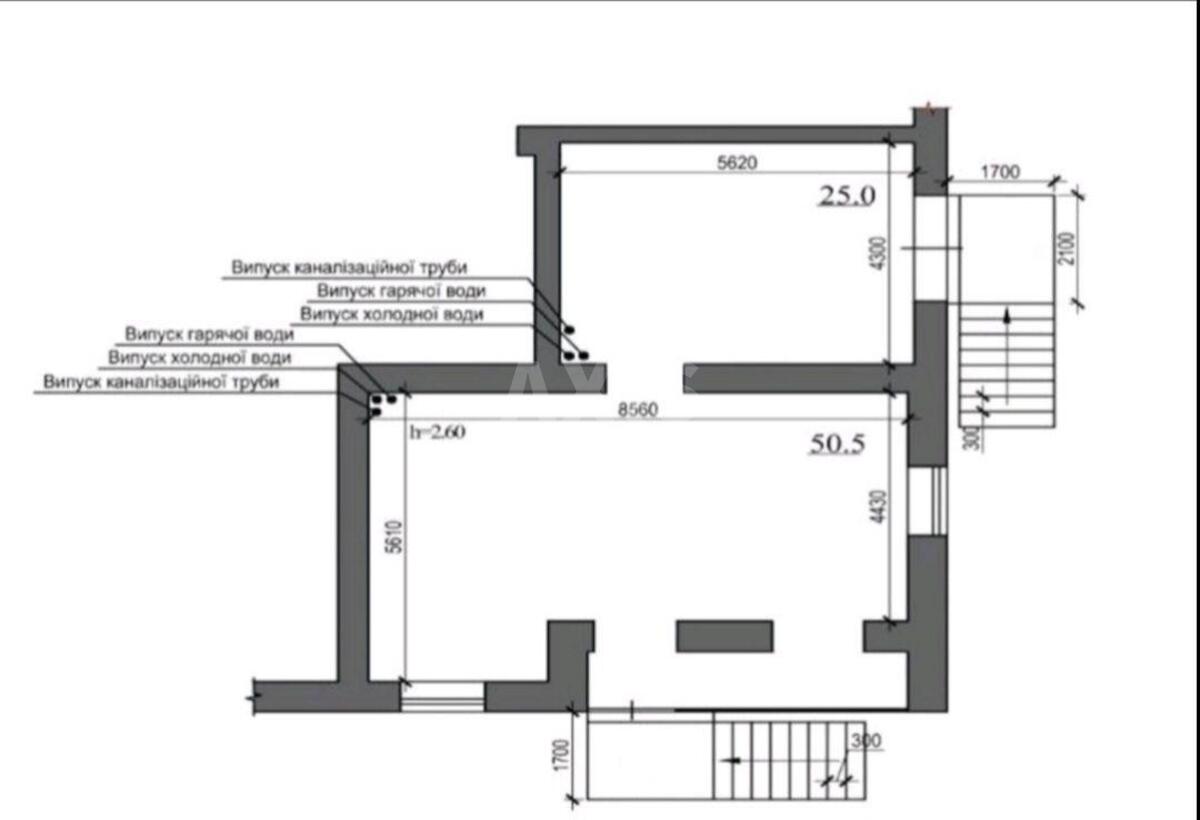
Загальна площа
77 м2
Загальний стан
З ремонтом
Ціна:
16 793 884 грн.
399 000 USD
  • AXIS Real Estate
  • AXIS Real Estate
  • AXIS Real Estate
Опис об'єкту

Приміщення вільного призначення. Два окремі входи – зручно для розділення потоків клієнтів чи організації двох бізнесів. Два санвузли – комфорт для персоналу та відвідувачів Централізоване опалення. Мебльоване приміщення. Електропотужність – 25 кВт – підходить для більшості видів комерційної діяльності. Центральні комунікації: водопровід, каналізація, електрика. Регулярний вивіз сміття. Зручний доїзд – асфальтована дорога.

Додаткова інформація

Схожі пропозиції