Объект торговли ул. Андрея Верхогляда 6Б, 77м2

  • Печерский район ул. Андрея Верхогляда 6Б
  • Код: SC-216-914
  • Добавлено: 22.10.2025
  • Добавить в избранное
Тип рынка
Вторичный рынок
Улица
ул. Андрея Верхогляда 6Б
Призначення
Торговое помещение
Этаж
1 Этаж
Этажность
9 этажный дом
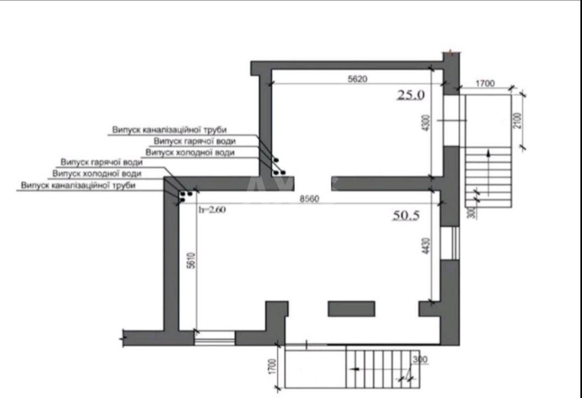
Общая площадь
77 м2
Общее состояние
С ремонтом
Цена:
16 793 884 грн.
399 000 USD
  • AXIS Real Estate
  • AXIS Real Estate
  • AXIS Real Estate
Описание объекта

Помещение свободного назначения. Два отдельных входа - удобно для разделения потоков клиентов или организации двух бизнесов. Два санузла - комфорт для персонала и посетителей Централизованное отопление. Меблированное помещение. Электромощность - 25 кВт - подходит для большинства видов коммерческой деятельности. Центральные коммуникации: водопровод, канализация, электричество. Регулярный вывоз мусора. Удобный подъезд - асфальтированная дорога.

Дополнительная информация

Похожие предложения