Продаж

Усі фото (8)
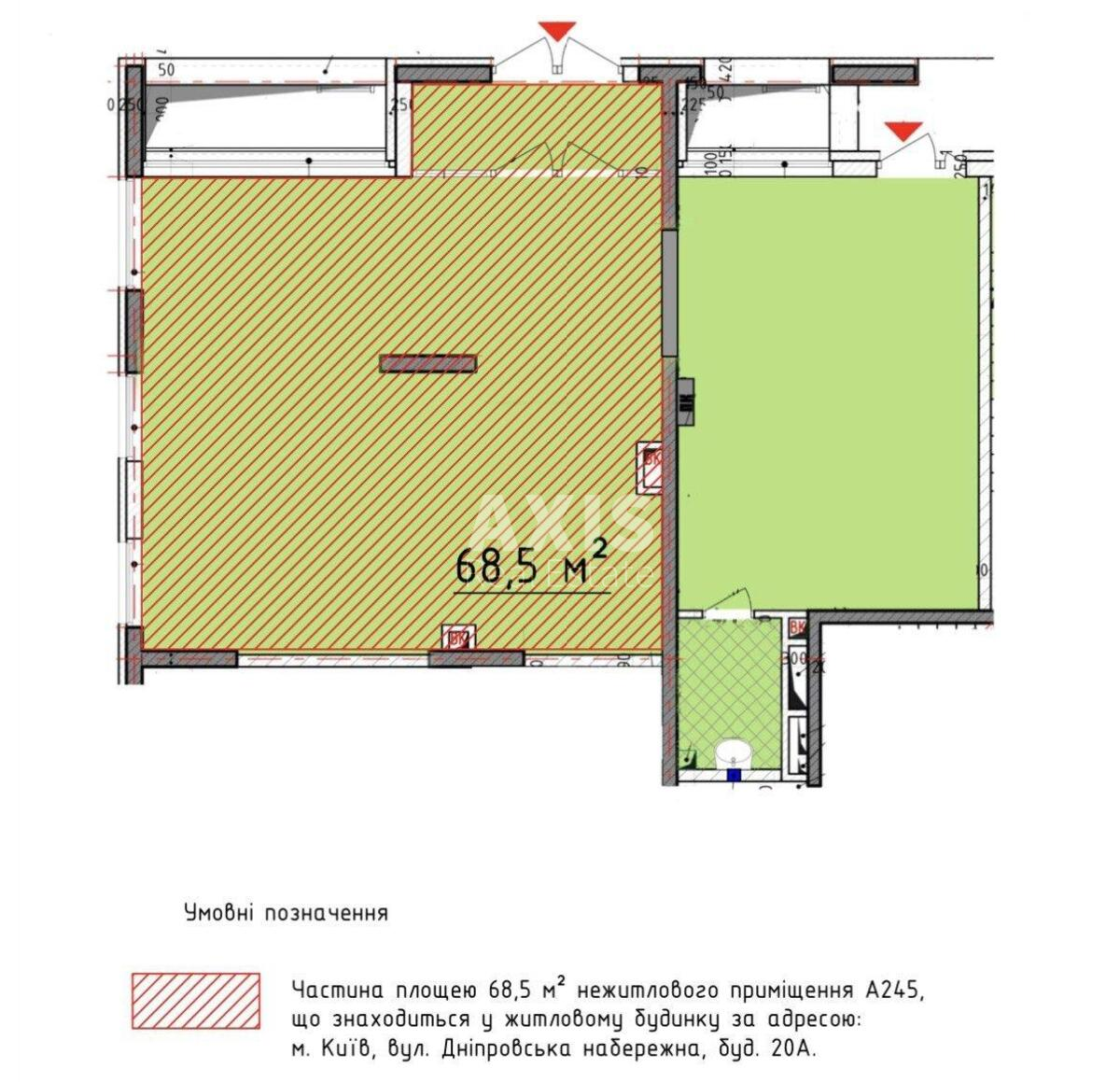
Об'єкт торгівлі наб. Дніпровська 20А, 108м2
- Додати в обране
-
Подiлитись посиланням
Тип ринку
Вторинний ринок
Вулиця
наб. Дніпровська 20А
Назначение
Торгове приміщення
Поверх
1 Поверх
Поверховість
25 поверховий будинок
Загальна площа
108 м2
Загальний стан
Без ремонту
Ціна:
16 492 603 грн.
399 000 USD
Опис об'єкту
ЖК Севен, приміщення вільного призначення. Топова локація. Суперфасад. Найкраще приміщення комплексу. Трафік з метро. Вид на прогулянкову набережну біля озера. Приміщення знаходиться на розі ЖК «Севен», який складається з шести 25-поверхових будинків на 2500 квартир. Всі будинки введені в експлуатацію. Площа - 108 м2, потужність електромережі - 40 кВт, висота стелі - 3,5 м.
Додаткова інформація