Продажа

Все фото (8)
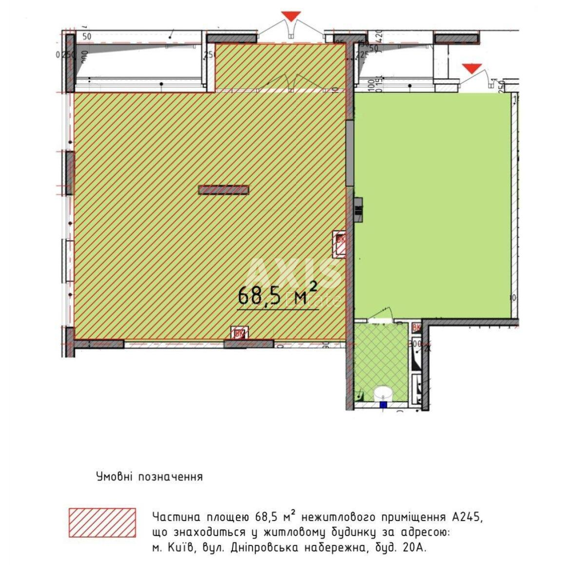
Объект торговли наб. Днепровская 20А, 108м2
- Добавить в избранное
-
Поделиться ссылкой
Тип рынка
Вторичный рынок
Улица
наб. Днепровская 20А
Призначення
Торговое помещение
Этаж
1 Этаж
Этажность
25 этажный дом
Общая площадь
108 м2
Общее состояние
Без ремонта
Цена:
16 492 603 грн.
399 000 USD
Описание объекта
ЖК Севен, помещение свободного назначения. Топовая локация. Суперфасад. Лучшее помещение комплекса. Трафик с метро. Вид на прогулочную набережную возле озера. Помещение находится на углу ЖК "Севен", который состоит из шести 25-этажных домов на 2500 квартир. Все дома введены в эксплуатацию. Площадь - 108 м2, мощность электросети - 40 кВт, высота потолков - 3,5 м.
Дополнительная информация