Оренда

Усі фото (8)
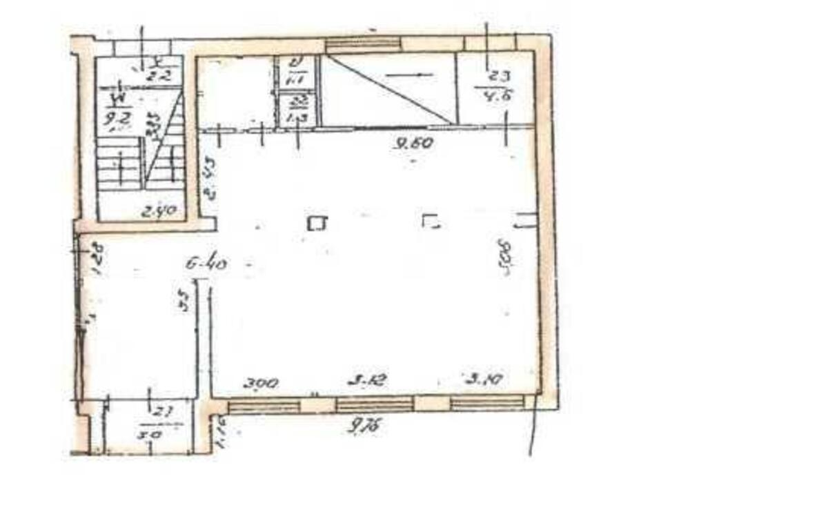
Об'єкт торгівлі бул. Перова 40, 96м2
- Додати в обране
-
Подiлитись посиланням
Тип ринку
Вторинний ринок
Вулиця
бул. Перова 40
Назначение
Торгове приміщення
Поверх
1 Поверх
Поверховість
5 поверховий будинок
Загальна площа
96 м2
Загальний стан
З ремонтом
Ціна:
116 178 грн.
2 785 USD
Опис об'єкту
Приміщення вільного призначення. Багато кВт. Два виходи. Доступ у підвал. Нежитлове приміщення у житловому фонді. Підійде під різний вид діяльності. Розвинена інфраструктура. Гарна та зручна локація.
Додаткова інформація