Rent

All photos (8)
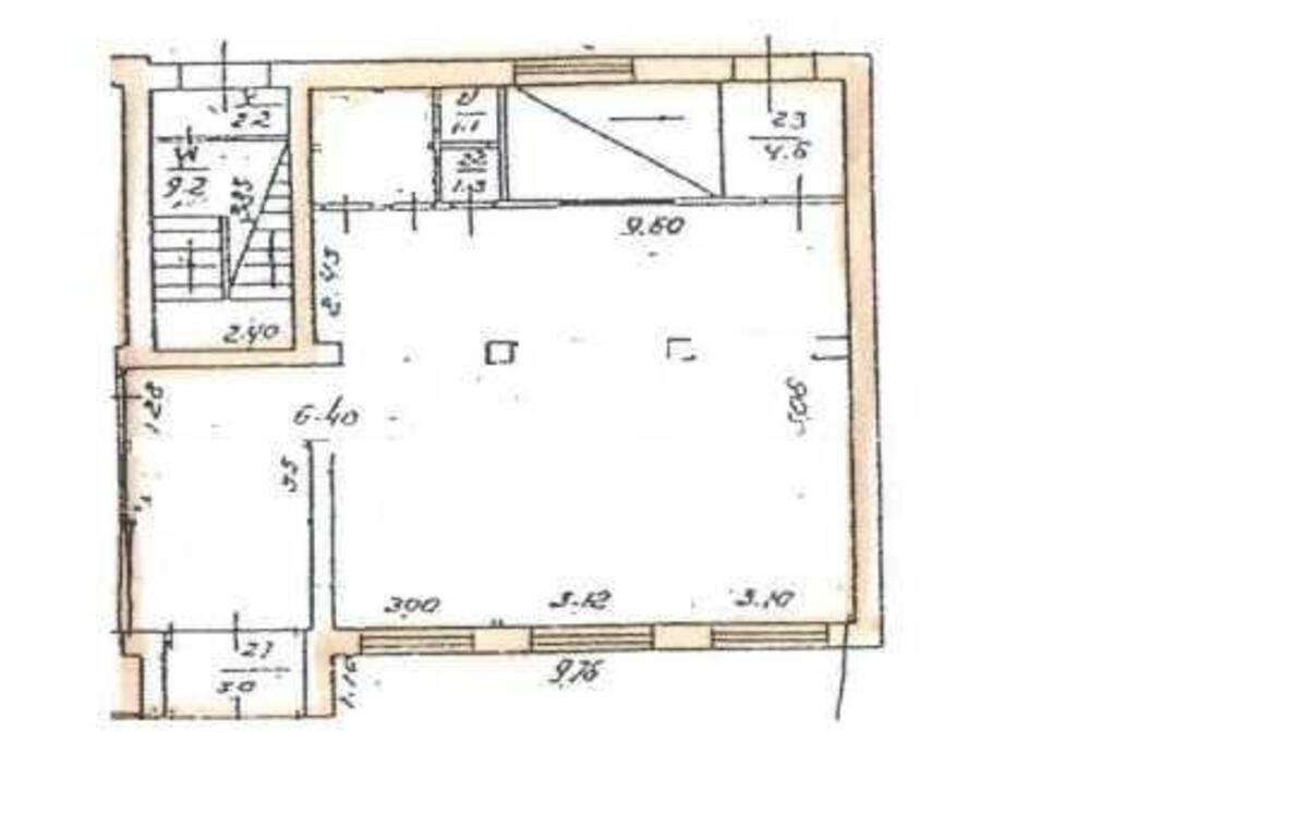
Trade object bul. Perova 40, 96m2
- Add to favorites
-
Share link
Market type
Secondary market
Street
bul. Perova 40
Purpose
Trade Premise
Floor
1 Floor
Number of storeys
5 storey house
Total area
96 м2
General state
With repair
Price:
116 178 UAH
2 785 USD
Description of the object
The premises are for free use. Many kW. Two exits. Access to the basement. Non-residential premises in the housing stock. Suitable for various types of activities. Developed infrastructure. Good and convenient location.
Additional Information