Оренда

Усі фото (3)
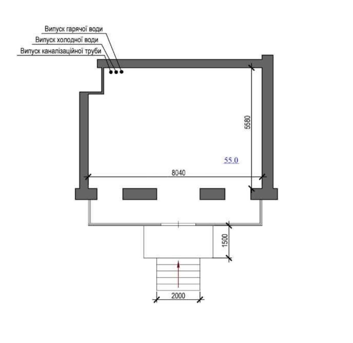
Об'єкт торгівлі бул. Лепсе Івана 83, 55м2
- Додати в обране
-
Подiлитись посиланням
Тип ринку
Вторинний ринок
Вулиця
бул. Лепсе Івана 83
Назначение
Торгове приміщення
Поверх
1 Поверх
Поверховість
5 поверховий будинок
Загальна площа
55 м2
Загальний стан
Без ремонту
Ціна:
55 000 грн.
1 331 USD
Опис об'єкту
Приміщення вільного призначення. Навпроти зупинок і Онкогінекологічне відділення Онкоцентру біля АТБ і Фори. Нежитловий. Правильна прямокутна форма. Окремий фасадний вхід. Всі комунікації заведені. Великий густонаселений район.
Додаткова інформація