Rent

All photos (3)
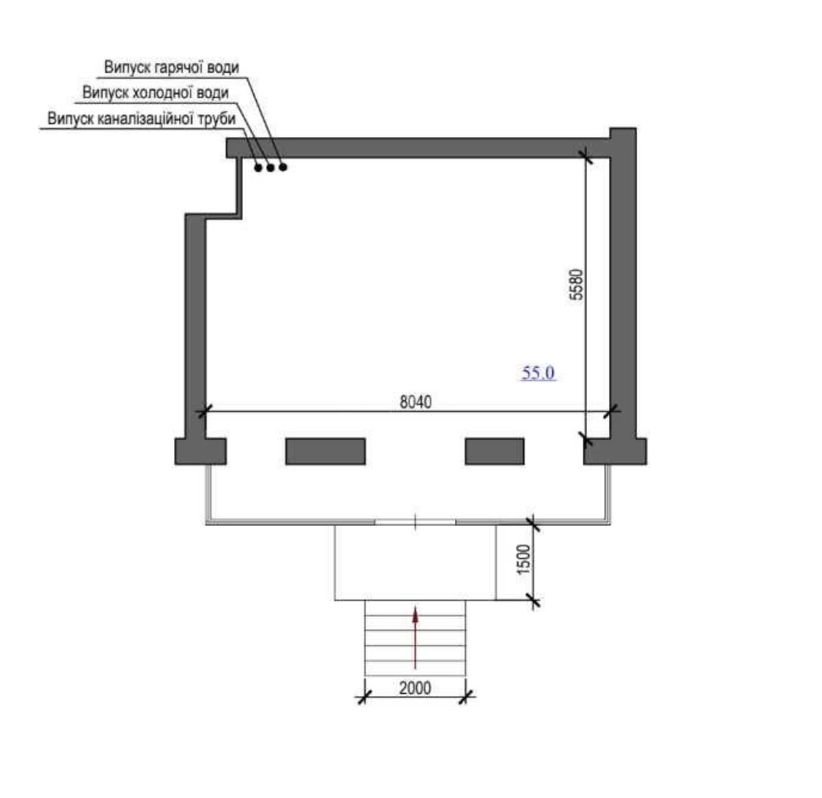
Trade object bul. Lepse Ivana 83, 55m2
- Add to favorites
-
Share link
Market type
Secondary market
Street
bul. Lepse Ivana 83
Purpose
Trade Premise
Floor
1 Floor
Number of storeys
5 storey house
Total area
55 м2
General state
Without repair
Price:
55 000 UAH
1 331 USD
Description of the object
The premises are free for use. Opposite the bus stops and the Onco-Gynecological Department of the Oncology Center near ATB and Fora. Non-residential. Regular rectangular shape. Separate front entrance. All communications are established. A large densely populated area.
Additional Information