Оренда

Усі фото (8)
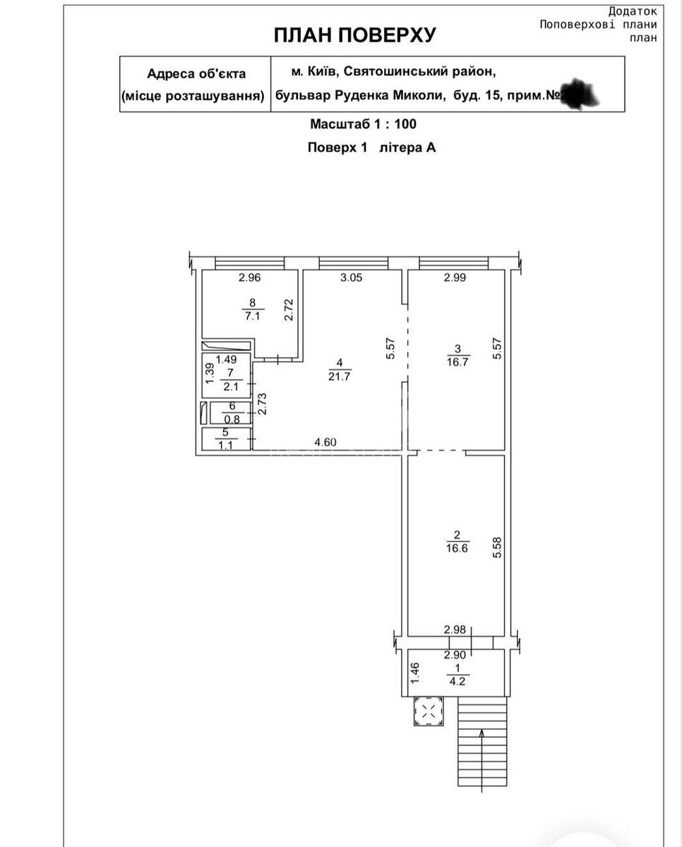
Об'єкт торгівлі бул. Кольцова 15, 69м2
- Додати в обране
-
Подiлитись посиланням
Тип ринку
Вторинний ринок
Вулиця
бул. Кольцова 15
Назначение
Торгове приміщення
Поверх
1 Поверх
Поверховість
9 поверховий будинок
Загальна площа
69 м2
Загальний стан
Без ремонту
Ціна:
45 171 грн.
1 081 USD
Опис об'єкту
Приміщення вільного призначення. Вихід на фасад, напроти ринок'Дніпро'. В будинку 10 комерційних об'єктів. Без ремонту, ремонт за домовленістю. Підійде під любий вид діяльності. Є все необхідне. Гарна транспортна розв'язка. Чудова місцевість.
Додаткова інформація