Rent

All photos (8)
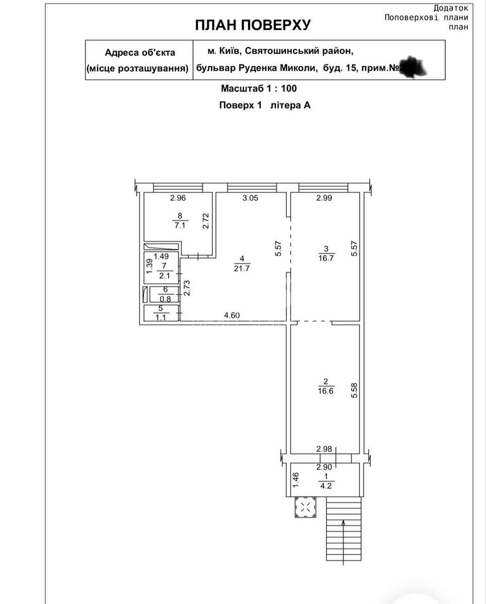
Trade object bul. Kol'cova 15, 69m2
- Add to favorites
-
Share link
Market type
Secondary market
Street
bul. Kol'cova 15
Purpose
Trade Premise
Floor
1 Floor
Number of storeys
9 storey house
Total area
69 м2
General state
Without repair
Price:
45 171 UAH
1 081 USD
Description of the object
The premises are for free use. Exit to the facade, opposite the Dnipro market. The house has 10 commercial objects. Without repair, repair by agreement. Suitable for any type of activity. There is everything you need. Good transport interchange. Great location.
Additional Information