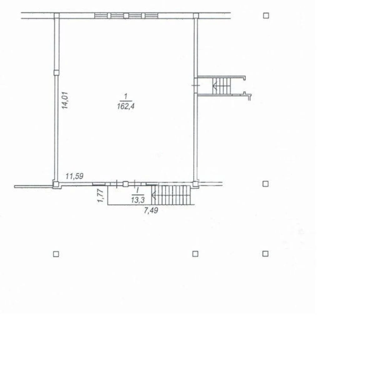
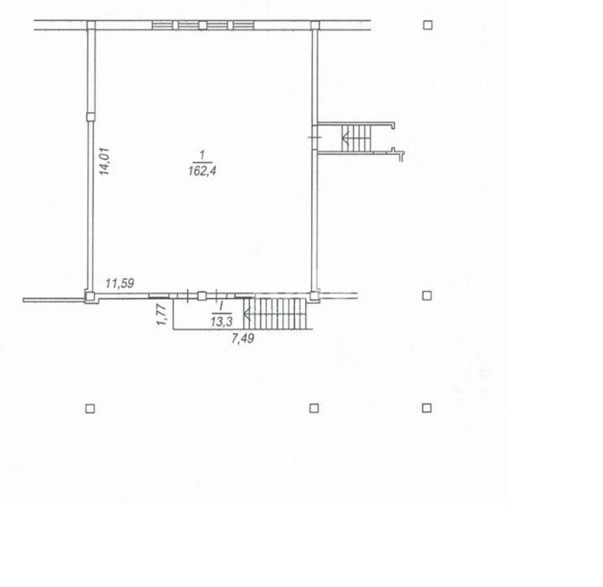
Офіс вул. Шовковична 42/44, 476м2

  • Печерський район вул. Шовковична 42/44
  • Код: RC-193-216
  • Добавлено: 25.02.2026
  • Додати в обране
Тип ринку
Вторинний ринок
Вулиця
вул. Шовковична 42/44
Назначение
Офісне приміщення
Поверх
2 Поверх
Поверховість
2 поверховий будинок
Загальна площа
476 м2
Загальний стан
З ремонтом
Ціна:
428 766 грн.
9 900 USD
Опис об'єкту

Офісне приміщення. Є все необхідне для роботи. Хороше планування. Електрика та генератор є. Ремонтні канікули. Без меблів. Окремий вхід. Багато простору. Зручна локація.

Схожі пропозиції