Офис ул. Шелковичная 42/44, 476м2

  • Печерский район ул. Шелковичная 42/44
  • Код: RC-193-216
  • Добавлено: 25.02.2026
  • Добавить в избранное
Тип рынка
Вторичный рынок
Улица
ул. Шелковичная 42/44
Призначення
Офисное помещение
Этаж
2 Этаж
Этажность
2 этажный дом
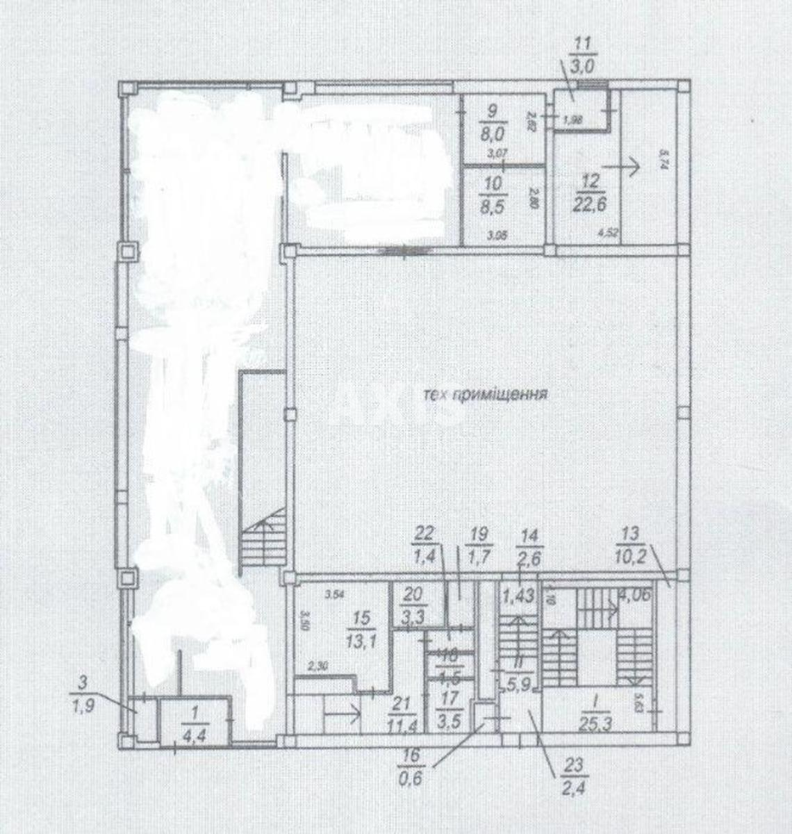
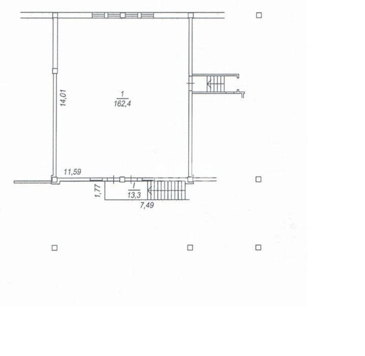
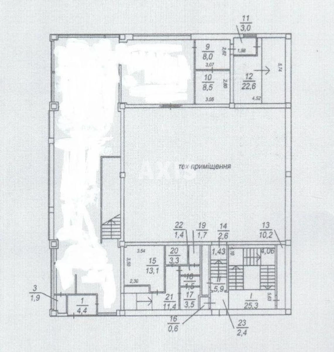
Общая площадь
476 м2
Общее состояние
С ремонтом
Цена:
428 766 грн.
9 900 USD
Описание объекта

Офисное помещение. Есть все необходимое для работы. Хорошая планировка. Электричество и генератор есть. Ремонтные каникулы. Без мебели. Отдельный вход. Много пространства. Удобная локация.

Похожие предложения