Продаж
 
              
                 
                Усі фото (4)
              
              
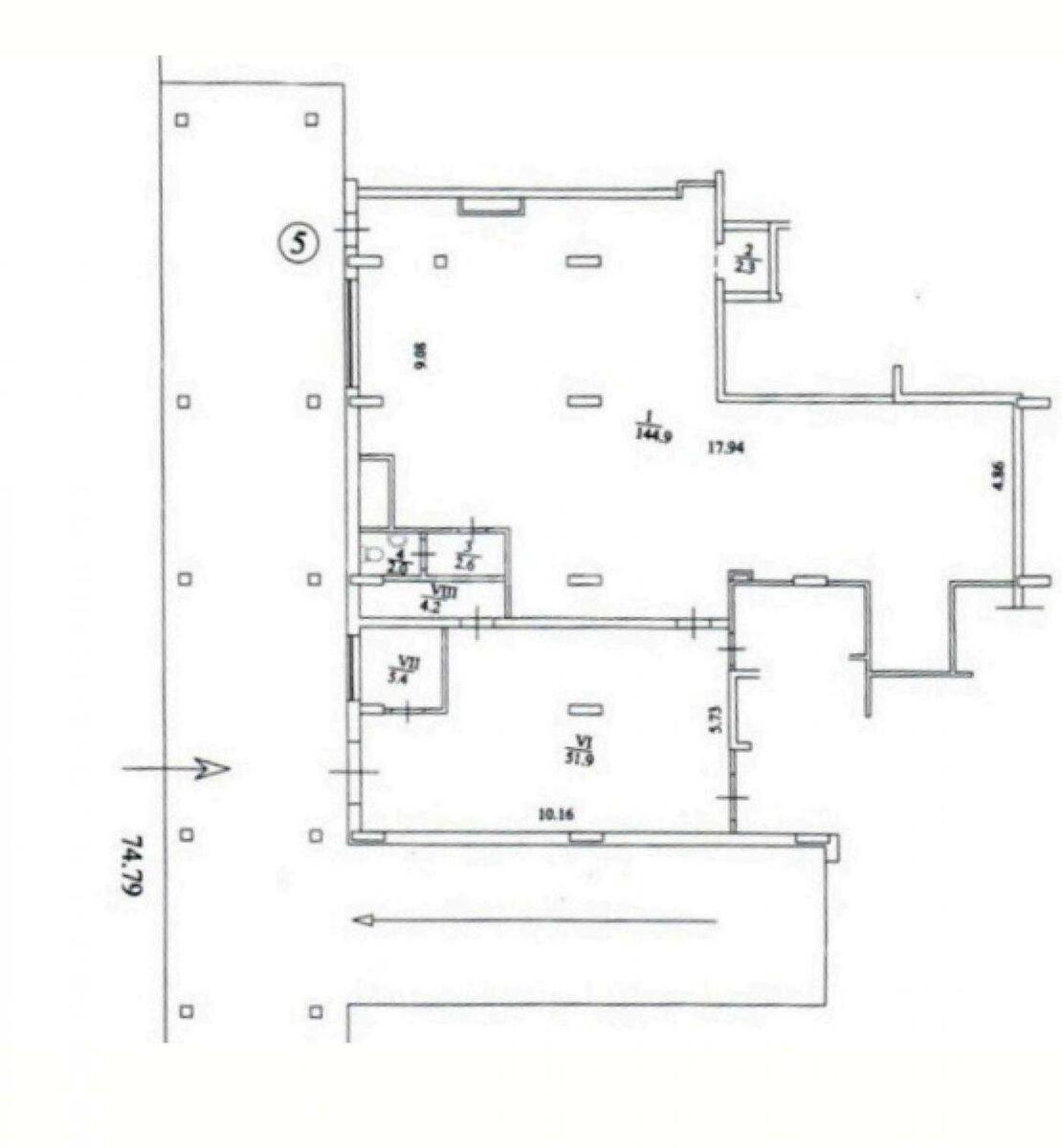
          Об'єкт сервісу вул. Драгомирова Михайла 19, 151м2
- Додати в обране
- 
              Подiлитись посиланням
Тип ринку
                Вторинний ринок
              Вулиця
                
                  вул. Андрія Верхогляда 19
              Назначение
                Сервісний об'єкт
              Поверх
                1 Поверх
              Поверховість
                1 поверховий будинок
                
              Загальна площа
                151 м2
              Загальний стан
                Без ремонту
              Ціна:
              22 200 211 грн.
              528 500 USD
            Опис об'єкту
          ЖК Новопечерські Липки, приміщення вільного призначення. Розташована у центральній частині міста в активно прохідній локації з високим пішохідним і транспортним потоком. Приміщення має загальну площу на першому поверсі, що ідеально підходить під широкий спектр комерційних потреб — магазин, салон краси, медичний центр, офіс, шоурум, кафе, представництво, сервісний центр, навчальний заклад або будь-який інший вид діяльності.
Додаткова інформація
           
                   
                   
                  