Продаж

Усі фото (16)
Офіс вул. Жилянська 72А, 1500м2
- Додати в обране
-
Подiлитись посиланням
Тип ринку
Вторинний ринок
Вулиця
вул. Жилянська 72А
Назначение
Офісне приміщення
Поверх
4 Поверх
Поверховість
4 поверховий будинок
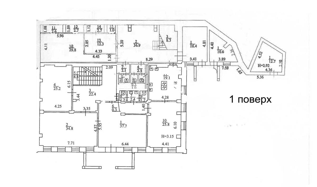
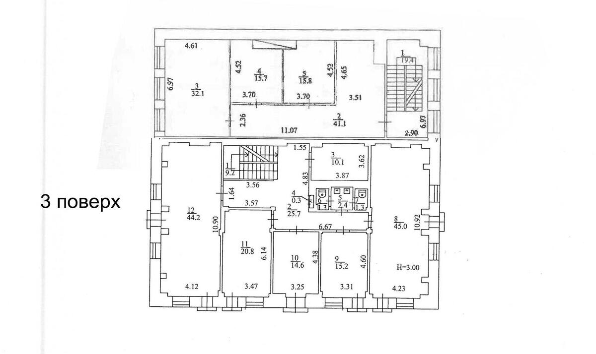
Загальна площа
1500 м2
Загальний стан
З ремонтом
Ціна:
123 917 136 грн.
3 000 000 USD
Опис об'єкту
Офісне приміщення. Центральна частина міста з зручною транспортною розв'язкою. Поруч в пішохідній доступності 3 станції метро («Університет», «Площа Українських Героїв» та «Олімпійська» знаходяться в межах 1 км). Інфраструктура: дві презентабельні вхідні групи, рецепція, всі необхідні комунікації та сучасні системи безпеки, власну огорожу, паркінг на 15 авто, цілодобова охорона. Є можливість встановити ліфт всередині будівлі. Будівля, після реконструкції, якісно споруджена з червоної цегли, перекрита дахом з міді та високоякісне оздоблення.
Додаткова інформація