Sell

All photos (16)
Office vul. Zhyljans'ka 72А, 1500m2
- Add to favorites
-
Share link
Market type
Secondary market
Street
vul. Zhyljans'ka 72А
Purpose
Office Premise
Floor
4 Floor
Number of storeys
4 storey house
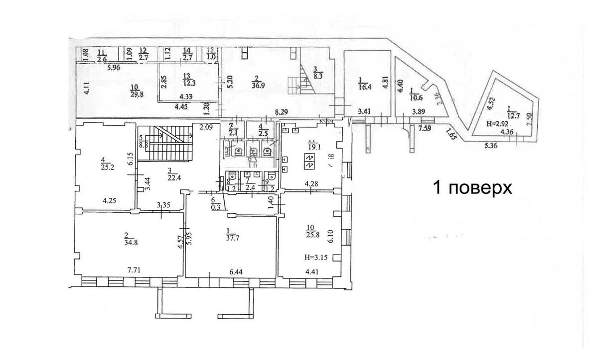
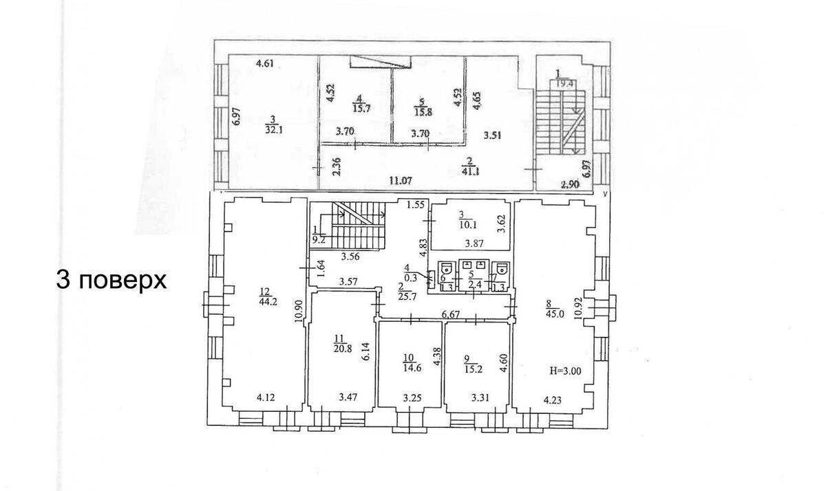
Total area
1500 м2
General state
With repair
Price:
123 917 136 UAH
3 000 000 USD
Description of the object
Office space. The central part of the city with convenient transportation. There are 3 metro stations within walking distance (Universytet, Ploshcha Ukrainskih Heroyiv and Olimpiyska are within 1 km). Infrastructure: two presentable entrance groups, reception, all necessary communications and modern security systems, own fence, parking for 15 cars, round-the-clock security. It is possible to install an elevator inside the building. The building, after reconstruction, is constructed of red brick, covered with a copper roof and high-quality finishing.
Additional Information