Офіс вул. Воздвиженська 45, 64м2

  • Подільський район вул. Воздвиженська 45
  • Код: RC-222-921
  • Добавлено: 25.03.2026
  • Додати в обране
Тип ринку
Вторинний ринок
Вулиця
вул. Воздвиженська 45
Назначение
Офісне приміщення
Поверх
2 Поверх
Поверховість
7 поверховий будинок
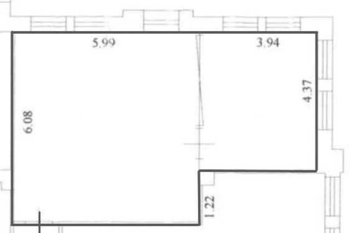
Загальна площа
64 м2
Загальний стан
З ремонтом
Ціна:
45 000 грн.
1 029 USD
Опис об'єкту

Офісне приміщення. 2 поверх, з ремонтом, приміщення пропонується БЕЗ МЕБЛІВ. Планування - open-space Площа -55 м2, з коефіцієнтом загальних площ (1,17) - 64,35 м2. Є підземний паркінг для укриття під час тривог. Генератор.

Схожі пропозиції