Office vul. Vozdvyzhens'ka 45, 64m2

  • Podilskyi District vul. Vozdvyzhens'ka 45
  • Code: RC-222-921
  • Added by: 25.03.2026
  • Add to favorites
Market type
Secondary market
Street
vul. Vozdvyzhens'ka 45
Purpose
Office Premise
Floor
2 Floor
Number of storeys
7 storey house
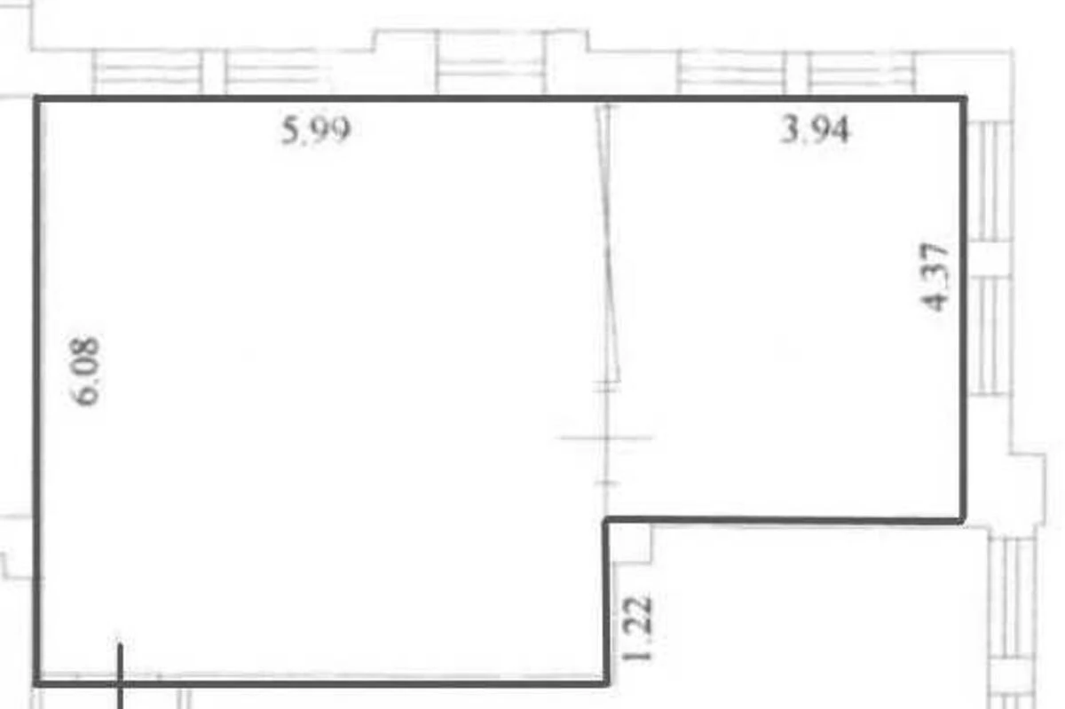
Total area
64 м2
General state
With repair
Price:
45 000 UAH
1 029 USD
Description of the object

Office space. 2nd floor, refurbished; the premises are offered UNFURNISHED. Layout: open-plan Floor area: 55 m², with a common area coefficient (1.17) – 64.35 m². Underground car park available for shelter during emergencies. Generator.

Similar offers