Офіс вул. Володимирська 4, 400м2

  • Шевченківський район вул. Володимирська 4
  • Код: RC-209-188
  • Добавлено: 25.02.2026
  • Додати в обране
Тип ринку
Вторинний ринок
Вулиця
вул. Володимирська 4
Назначение
Офісне приміщення
Поверх
4 Поверх
Поверховість
7 поверховий будинок
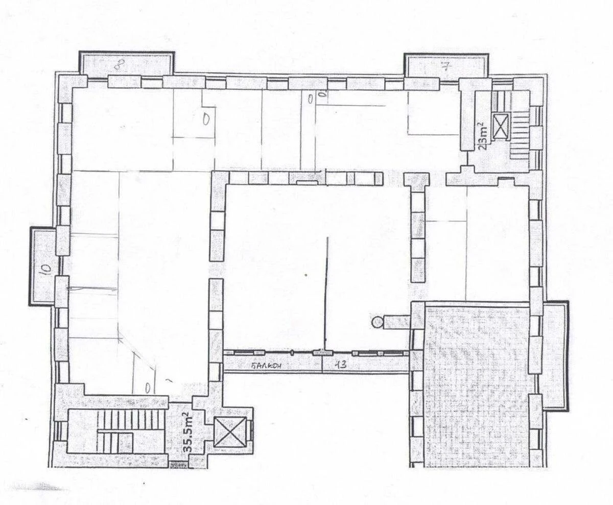
Загальна площа
400 м2
Загальний стан
З ремонтом
Ціна:
381 126 грн.
8 800 USD
Опис об'єкту

Офісне приміщення. Планування: 9 кабінетів, 4 балкони, серверна, кухня, 3 С/В. Наші переваги: Цілодобова охорона. Пропускна система. Світло не відключають (але у разі відключень є потужний генератор). Опалення автономне (електричне). Є обладнаний бомбосховищ. Є можливість орендувати паркомісце. Розвинена інфраструктура: на першому поверсі будівлі знаходяться ресторани, кав'ярні тощо.

Схожі пропозиції