Office vul. Volodymyrs'ka 4, 400m2

  • Shevchenkivskyi District vul. Volodymyrs'ka 4
  • Code: RC-209-188
  • Added by: 25.02.2026
  • Add to favorites
Market type
Secondary market
Street
vul. Volodymyrs'ka 4
Purpose
Office Premise
Floor
4 Floor
Number of storeys
7 storey house
Total area
400 м2
General state
With repair
Price:
381 126 UAH
8 800 USD
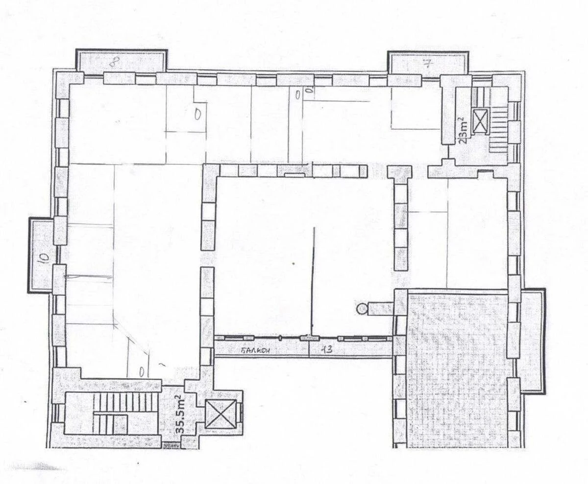
Description of the object

Office space. Layout: 9 offices, 4 balconies, server room, kitchen, 3 bathrooms. Our advantages: 24-hour security. Access control system. The lights are not turned off (but in case of power outages, there is a powerful generator). Autonomous heating (electric). There is an equipped bomb shelter. It is possible to rent a parking space. Developed infrastructure: there are restaurants, coffee shops, etc. on the first floor of the building.

Similar offers