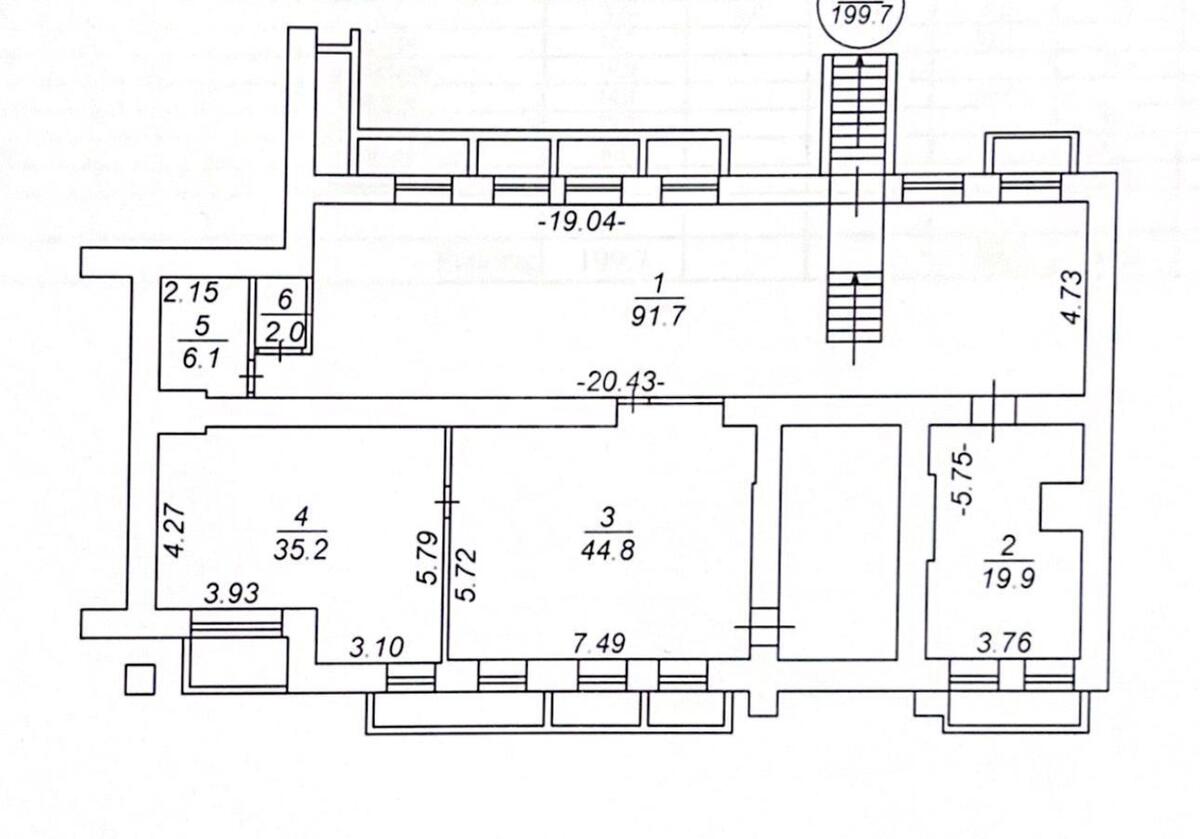
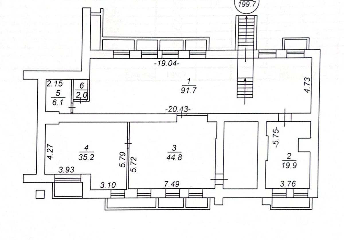
Офіс вул. Скоропадського Павла 15, 199м2

  • Голосіївський район вул. Скоропадського Павла 15
  • Код: SC-220-189
  • Добавлено: 25.02.2026
  • Додати в обране
Тип ринку
Вторинний ринок
Вулиця
вул. Скоропадського Павла 15
Назначение
Офісне приміщення
Поверх
1 Поверх
Поверховість
4 поверховий будинок
Загальна площа
199 м2
Загальний стан
Без ремонту
Ціна:
4 287 668 грн.
99 000 USD
Опис об'єкту

Приміщення вільного призначення. Розташовано на цокольному поверсі 4пов.будинку. Без ремонту, приміщення потребує капітального ремонту. Закритий двір, шлагбаум - охорона, паркомісця. Приміщення підходить для будь якого виду діяльності. Додатково можна облагородити прибудинкову територію під вашу діяльність.

Схожі пропозиції