Office vul. Skoropads'kogo Pavla 15, 199m2

  • Holosiivskyi District vul. Skoropads'kogo Pavla 15
  • Code: SC-220-189
  • Added by: 25.02.2026
  • Add to favorites
Market type
Secondary market
Street
vul. Skoropads'kogo Pavla 15
Purpose
Office Premise
Floor
1 Floor
Number of storeys
4 storey house
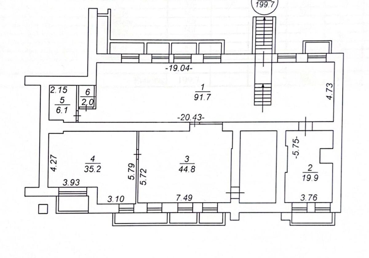
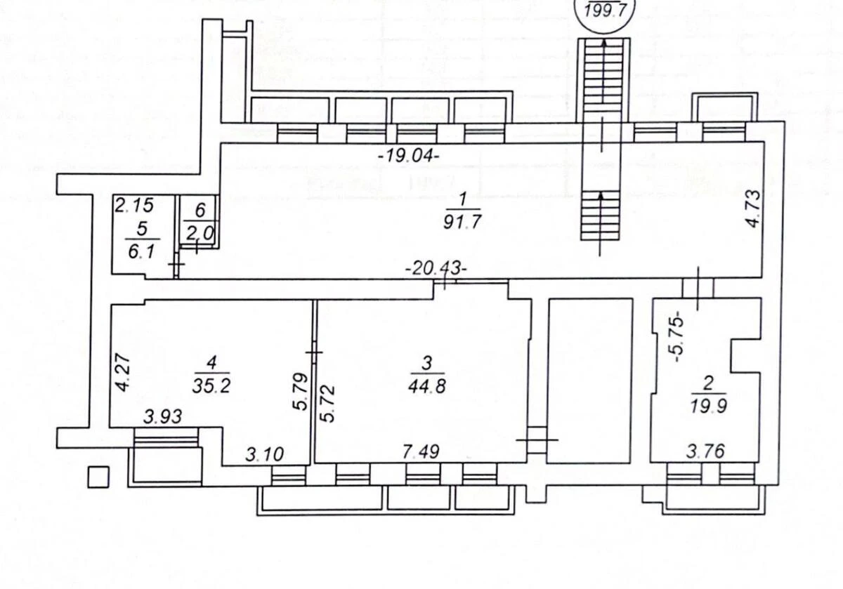
Total area
199 м2
General state
Without repair
Price:
4 287 668 UAH
99 000 USD
Description of the object

Premises for free use. Located on the ground floor of a 4-story building. No renovation, the premises require major repairs. Closed courtyard, barrier - security, parking spaces. The premises are suitable for any type of activity. Additionally, you can improve the adjacent territory for your activities.

Similar offers