Офіс вул. Михайлівська 12Б, 1481м2

  • Шевченківський район вул. Михайлівська 12Б
  • Код: SC-214-267
  • Добавлено: 28.08.2025
  • Додати в обране
Тип ринку
Вторинний ринок
Вулиця
вул. Михайлівська 12Б
Назначение
Офісне приміщення
Поверх
1 Поверх
Поверховість
4 поверховий будинок
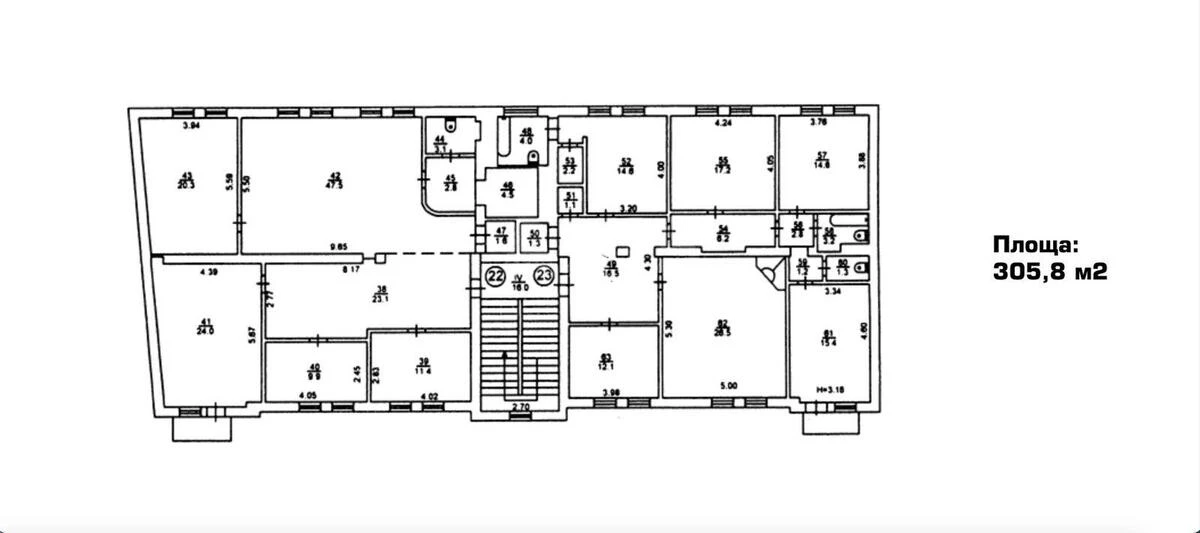
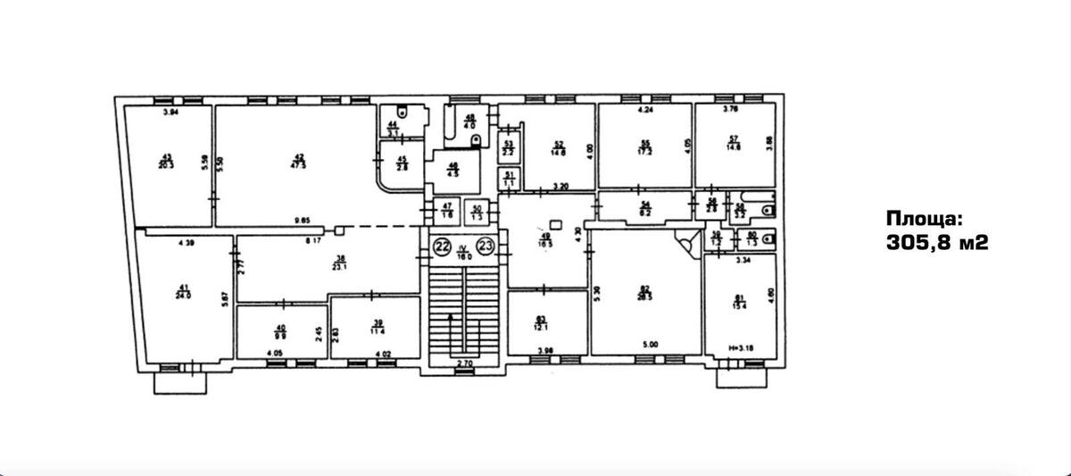
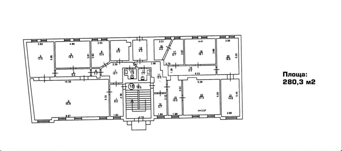
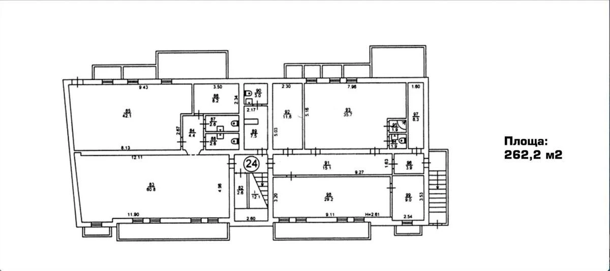
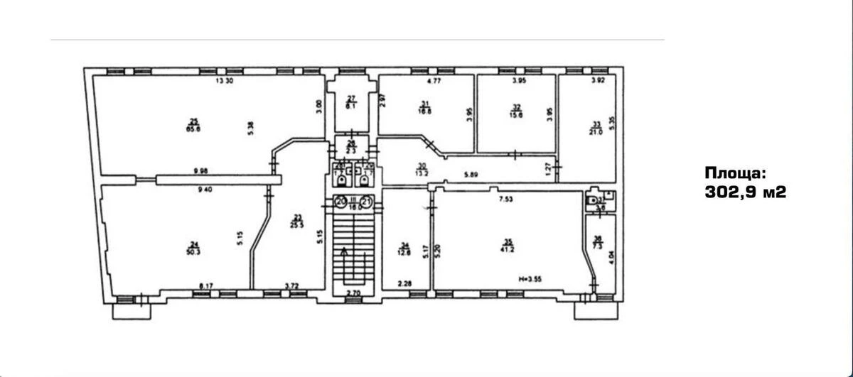
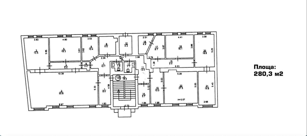
Загальна площа
1481 м2
Загальний стан
З ремонтом
Ціна:
186 820 884 грн.
4 444 200 USD
  • AXIS Real Estate
  • AXIS Real Estate
  • AXIS Real Estate
Опис об'єкту

Офісне приміщення. Бізнес-центр оснащений металопластиковими вікнами, централізованим опаленням та кондиціонуванням, водопостачанням та водовідведенням. Заведена потужність 200 кВт на будівлю. Розташування надзвичайно зручне - всього 2 хвилини пішки від станції метро 'Майдан Незалежності' та 'Хрещатик'.

Додаткова інформація

Схожі пропозиції