Офис ул. Михайловская 12Б, 1481м2

  • Шевченковский район ул. Михайловская 12Б
  • Код: SC-214-267
  • Добавлено: 28.08.2025
  • Добавить в избранное
Тип рынка
Вторичный рынок
Улица
ул. Михайловская 12Б
Призначення
Офисное помещение
Этаж
1 Этаж
Этажность
4 этажный дом
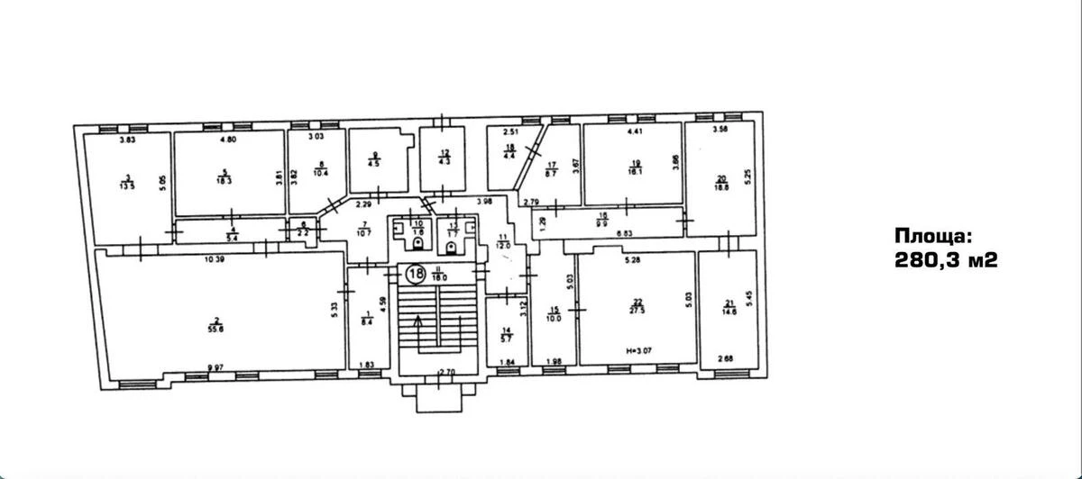
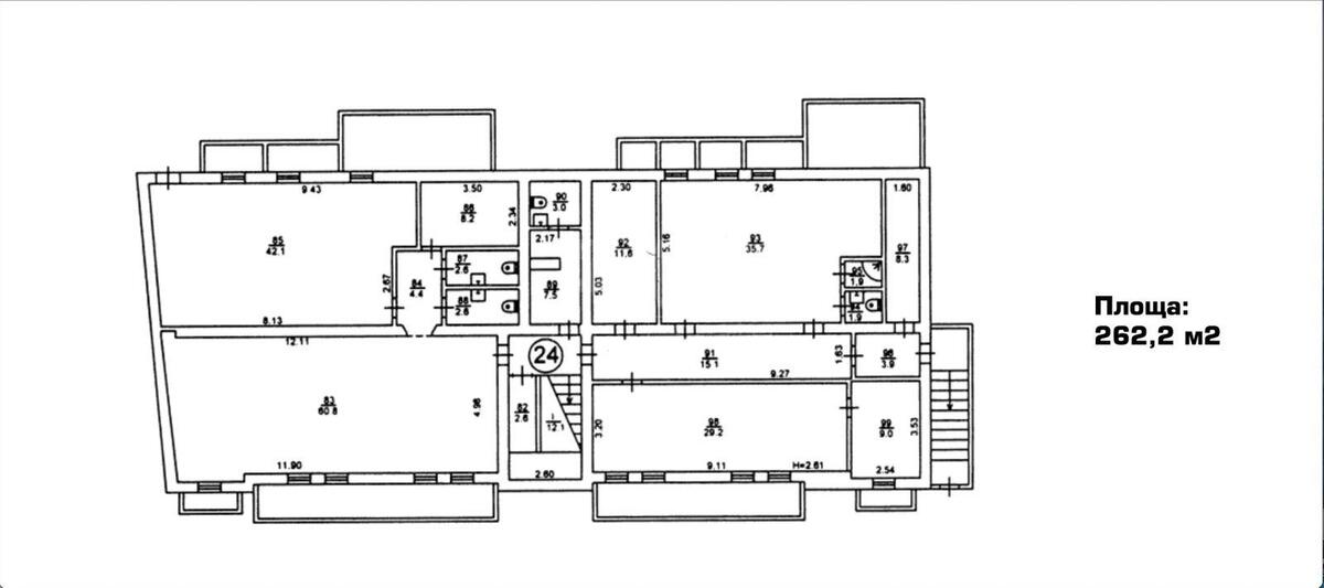
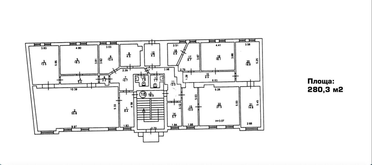
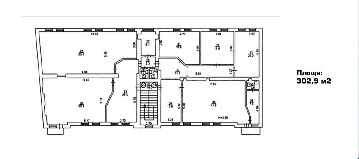
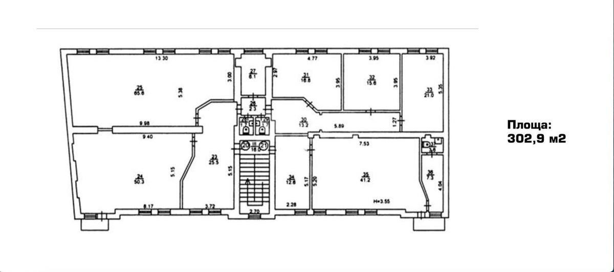
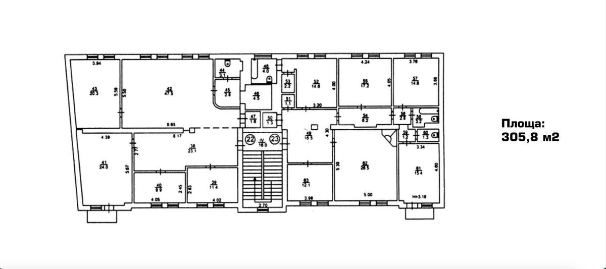
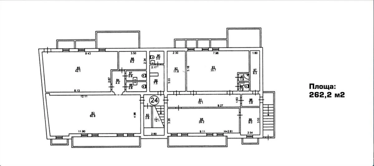
Общая площадь
1481 м2
Общее состояние
С ремонтом
Цена:
186 820 884 грн.
4 444 200 USD
  • AXIS Real Estate
  • AXIS Real Estate
  • AXIS Real Estate
Описание объекта

Офисное помещение. Бизнес-центр оснащен металлопластиковыми окнами, централизованным отоплением и кондиционированием, водоснабжением и водоотводом. Заведена мощность 200 кВт на здание. Расположение чрезвычайно удобное - всего 2 минуты пешком от станции метро 'Майдан Независимости' и 'Крещатик'.

Дополнительная информация

Похожие предложения