Продаж

Усі фото (11)
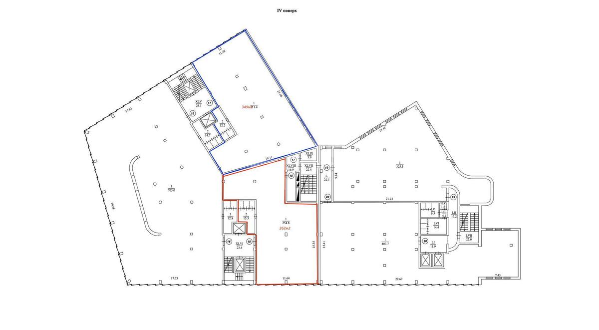
Офіс вул. Московська 31/33, 612м2
- Додати в обране
-
Подiлитись посиланням
Тип ринку
Вторинний ринок
Вулиця
вул. Московська 31/33
Назначение
Офісне приміщення
Поверх
4 Поверх
Поверховість
5 поверховий будинок
Загальна площа
612 м2
Загальний стан
Без ремонту
Ціна:
50 558 191 грн.
1 224 000 USD
Опис об'єкту
Офісне приміщення. Приміщення під чистове оздоблення. В бізнес центрі встановлена поповерхова загальна система кондиціонування, вентиляції. В кожному приміщенні є підводний води та каналізації, ввод електрики. Три вхдні групи повністю оздоблені, встановлені ліфти. На кожне приміщення є окреме право власності.
Додаткова інформація